Bénéficiez des services de nos partenaires locaux soigneusement sélectionnés
pour vous accompagner dans votre parcours d'achat immobilier

Programme neuf (eligible loi pinel b1)

— Saint-Gilles-Croix-De-Vie 85800 —
235 000 €
42 m²
2 pièces

Nos partenaires locaux
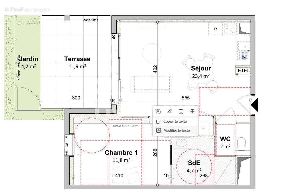
Dans un cadre idyllique, cette future résidence sera située au coeur du centre-ville de Saint Gilles Croix de vie, proche du port de plaisance. Cet appartement situé au rez de jardin composé d'un séjour lumineux, une salle d'eau, une grande chambre, WC séparé, une belle terrasse extérieur. La RE2020 vous assurera de façon pérenne un confort et une économie d'énergie tout en respectant l'environnement. (Eligible Loi Pinel B1) Plus de renseignements en agence

Référence: 1236
Honoraires à la charge du vendeur.

Prêt immobilier

Vous souhaitez connaître votre capacité d’emprunt et trouver le meilleur crédit immobilier ?
Réaliser une simulation gratuite

Appartement à SAINT-GILLES-CROIX-DE-VIE
Appartement à SAINT-GILLES-CROIX-DE-VIE
Appartement à SAINT-GILLES-CROIX-DE-VIE
Appartement à SAINT-GILLES-CROIX-DE-VIE
Appartement à SAINT-GILLES-CROIX-DE-VIE
Ce site est protégé par reCAPTCHA la Politique de confidentialité et les Conditions d’utilisation de Google s’appliquent.
Obtenir un prêt immobilier au meilleur taux ?

En poursuivant votre navigation sans modifier vos paramètres, vous acceptez l'utilisation de cookies susceptibles de réaliser des statistiques de visite. Cliquez ici pour plus d'informations