Bénéficiez des services de nos partenaires locaux soigneusement sélectionnés
pour vous accompagner dans votre parcours d'achat immobilier

Maisons neuves de 120 m² a 133 m² avec double garage attenant et terrains de 406 m² a 676 m² - rumilly

— Rumilly 74150 —
560 820 €
133 m² / 676 m²
5 pièces
parking

Nos partenaires locaux
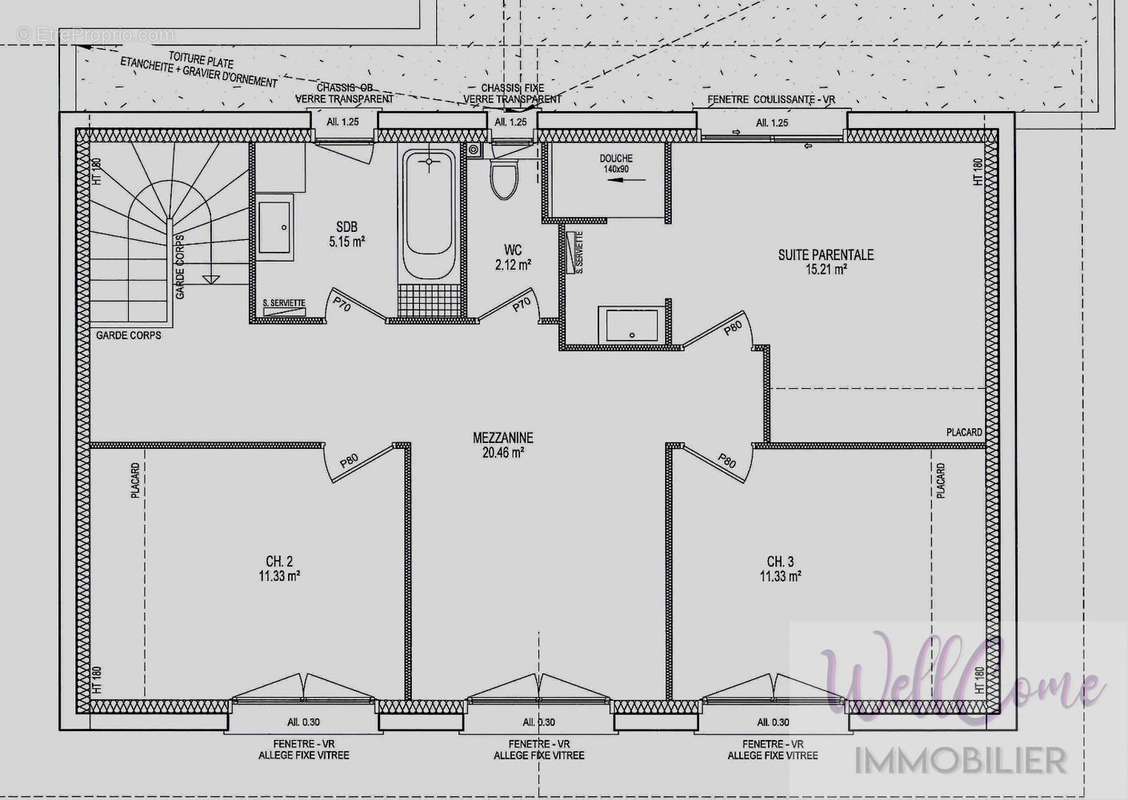
WellCome Immobilier et son équipe ont le plaisir de vous proposer sur la ville de Rumilly, à 20 minutes d'Annecy et 20 minutes d'Aix-Les-Bains, un nouveau projet de construction de 4 maisons individuelles 5 pièces, d'une superficie minimum de 120 m² à 133 m². Ces maisons haut de gamme sont composées au rez-de-chaussée d'une pièce de vie de 40 m² avec espace cuisine (mobiliers et équipements à installer par vos soins) ouverte sur le séjour, bureau (ou chambre), cellier et wc avec lave-mains. L'étage offre une grande mezzanine, 3 chambres dont une suite parentale avec salle d'eau privative, une salle de bains et un wc séparé. En annexe, vous bénéficierez d'un double garage attenant. Le tout est implanté sur un terrain viabilisé d'une surface comprise entre 406 m² et 676 m² selon le projet que vous choisirez. Construction de qualité à l'esthétique soignée alliant le charme du bois au design de matériaux contemporains. Livraison prévue courant 2025. Le + de ce projet : vous ne payez les frais de notaires que sur la valeur du terrain, la viabilisation des parcelles est intégralement prise en charge par le vendeur. Prestations de qualité pour ces maisons modernes bénéficiant des dernières normes écologiques, avec notamment, chauffage par pompe à chaleur, isolation phonique et thermique optimales. Une finition intérieure raffinée et un confort maximal qui n'attendent plus que de vous accueillir. Plus d'informations, consulter notre site www.wellcome-immobilier-pays-genevois.fr Nous contacter : [Coordonnées masquées] Honoraires TTC charge vendeur WELLCOME IMMOBILIER PAYS GENEVOIS - Gaël - - Plus d'informations sur https://www.wellcome-immobilier-pays-genevois.fr/ (réf. 7400755044)
Voir plus

Référence: 1878
Honoraires à la charge du vendeur.
Barème des honoraires

Prêt immobilier

Vous souhaitez connaître votre capacité d’emprunt et trouver le meilleur crédit immobilier ?
Réaliser une simulation gratuite

Maison à RUMILLY
Maison à RUMILLY
Maison à RUMILLY
Maison à RUMILLY
Maison à RUMILLY
Ce site est protégé par reCAPTCHA la Politique de confidentialité et les Conditions d’utilisation de Google s’appliquent.
Obtenir un prêt immobilier au meilleur taux ?

En poursuivant votre navigation sans modifier vos paramètres, vous acceptez l'utilisation de cookies susceptibles de réaliser des statistiques de visite. Cliquez ici pour plus d'informations