Bénéficiez des services de nos partenaires locaux soigneusement sélectionnés
pour vous accompagner dans votre parcours d'achat immobilier

En cours de construction, avec un étage, jardin, sous sol complet, garage, cave, travaux a prévoir

— Ferques 62250 —
82 900 €
95 m² / 620 m²
4 pièces
parking

Nos partenaires locaux
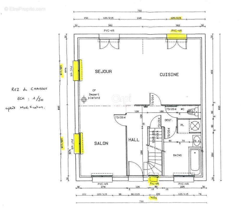
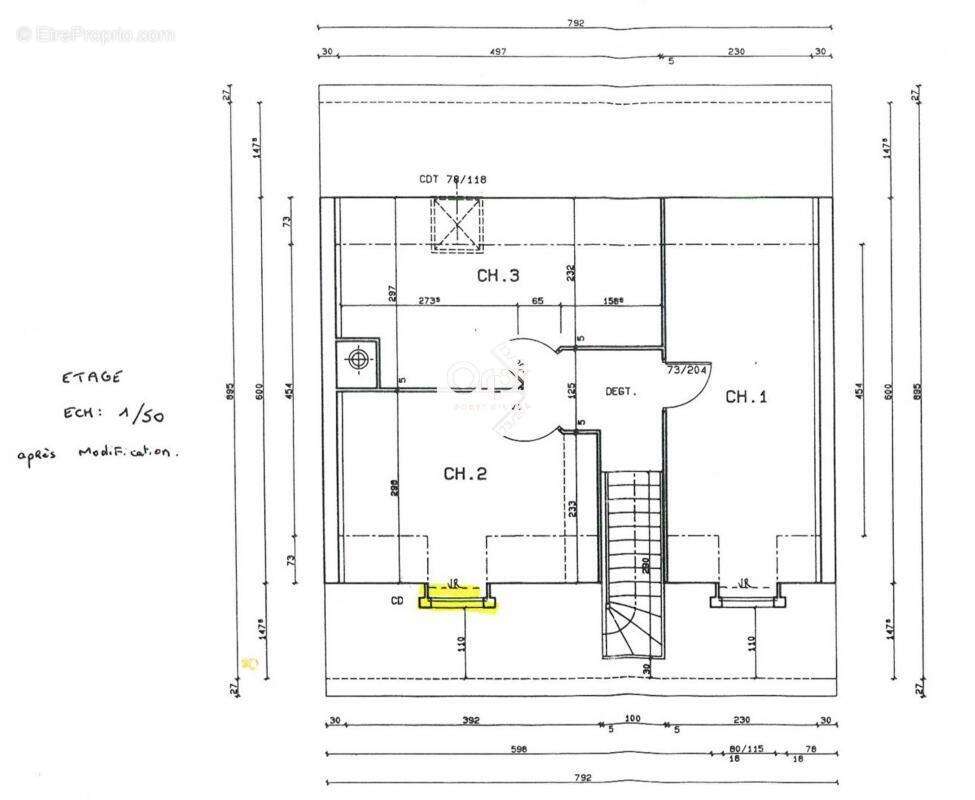
A VENDRE, FERQUES, maison en cours de construction, sur une parcelle de 620 m2, avec la possibilité d'avoir une entrée, une pièce à vivre et une cuisine au rez-de-chaussée; A l'étage, un palier, 3 chambres et une salle de bain. Un jardin et un sous-sol complet avec garage et cave ! A VISITER RAPIDEMENT ! TRAVAUX A PREVOIR !

Référence agence : 12316

Référence: HDDW-L44-2NR
Honoraires à la charge du vendeur.
Maison à FERQUES
Maison à FERQUES
Maison à FERQUES
Maison à FERQUES
Maison à FERQUES
Géorisques

Les informations sur les risques auxquels ce bien est exposé sont disponibles sur le site Géorisques : www.georisques.gouv.fr

Ce site est protégé par hCaptcha Politique de confidentialité et Conditions d’utilisation s’appliquent.

En poursuivant votre navigation sans modifier vos paramètres, vous acceptez l'utilisation de cookies susceptibles de réaliser des statistiques de visite. Cliquez ici pour plus d'informations