Bénéficiez des services de nos partenaires locaux soigneusement sélectionnés
pour vous accompagner dans votre parcours d'achat immobilier

Cap ferret océan - terrain avec permis purgé - john taylor

— Lege-Cap-Ferret 33950 —
3 780 000 €
2 742 m²

Nos partenaires locaux
Au cœur de la péninsule du Cap Ferret, John Taylor Bordeaux a le privilège de présenter une opportunité rare et prestigieuse.

Imaginez-vous posséder une parcelle de plus de 2700 m², en bordure de la majestueuse dune océane, offrant un accès direct et privilégié à la plage. C'est bien plus qu'un terrain ; c'est une invitation à vivre en harmonie avec l'océan Atlantique, où la sérénité rencontre le raffinement.

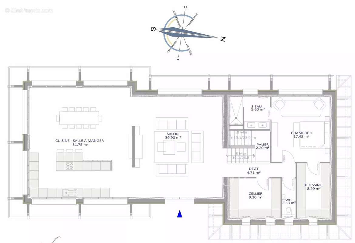
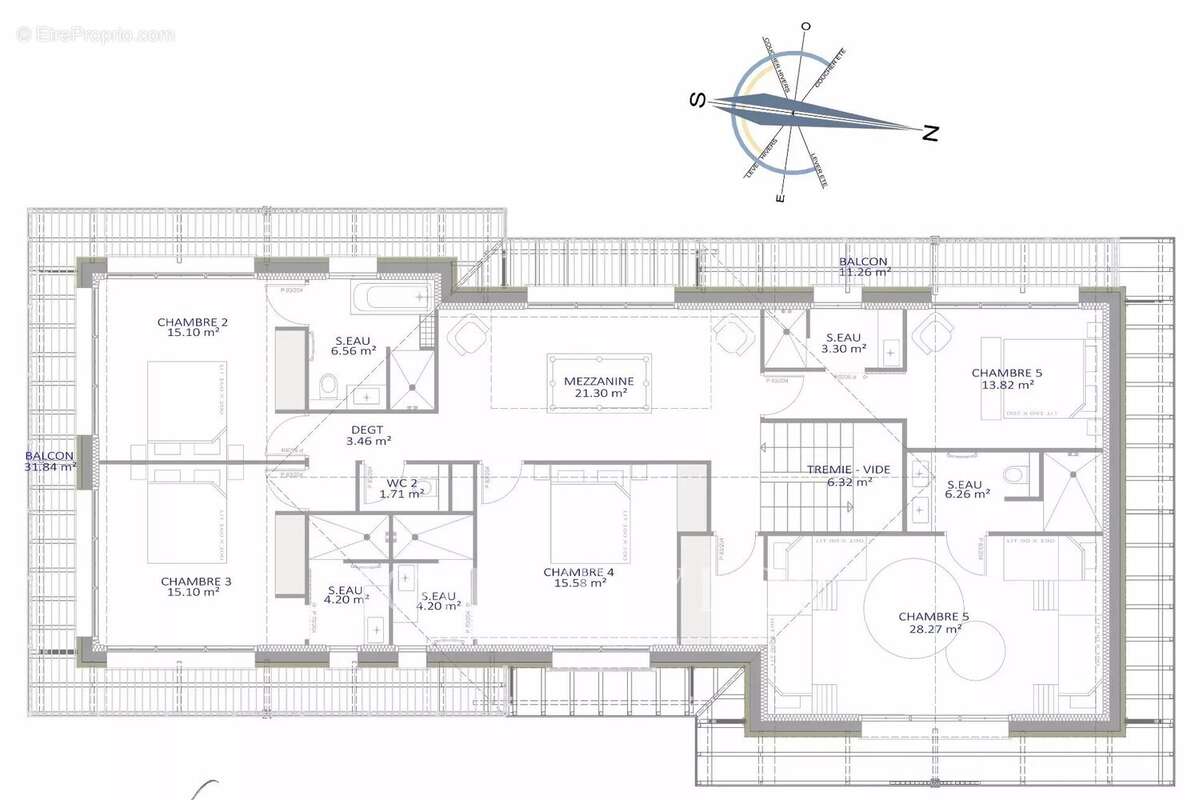
Cette propriété unique comporte deux bâtiments cadastrés qui ont été repensé par un architecte dans un projet dont le permis de construire a été validé et purgé pour une surface de 292m2.

Le jardin, ponctué de majestueux pins, crée une atmosphère paisible où le murmure des vagues se mêle à la symphonie naturelle de la nature environnante. C'est une expérience rare de trouver un terrain d'une telle ampleur, si proche de la plage, une opportunité que John Taylor Bordeaux est fier de vous présenter.

Caractéristiques incontournables :

- Localisation Idéale : Bordure de dune océane, avec accès privilégié à la plage.
- Potentiel de Rénovation et Expansion : Deux bâtiments offrant des possibilités créatives uniques.
- Permis de construire accordé
- Cadre Naturel D'Exception : Jardin arboré, bruit apaisant des vagues en toile de fond.
- Une Opportunité Rare Tant par sa Taille que sa Proximité de la Plage

Cette propriété est une toile vierge qui n'attend que votre vision pour prendre vie. Contactez-nous dès maintenant pour une visite privée et découvrez le luxe à son apogée au Cap Ferret.

(Projections 3D non contractuelles)
Voir plus

Référence: V0011CF

Prêt immobilier

Vous souhaitez connaître votre capacité d’emprunt et trouver le meilleur crédit immobilier ?
Réaliser une simulation gratuite

Maison à LEGE-CAP-FERRET
Maison à LEGE-CAP-FERRET
Maison à LEGE-CAP-FERRET
Maison à LEGE-CAP-FERRET
Maison à LEGE-CAP-FERRET
Maison à LEGE-CAP-FERRET
Maison à LEGE-CAP-FERRET
Maison à LEGE-CAP-FERRET
Maison à LEGE-CAP-FERRET
Maison à LEGE-CAP-FERRET
Maison à LEGE-CAP-FERRET
Ce site est protégé par reCAPTCHA la Politique de confidentialité et les Conditions d’utilisation de Google s’appliquent.
Obtenir un prêt immobilier au meilleur taux ?

En poursuivant votre navigation sans modifier vos paramètres, vous acceptez l'utilisation de cookies susceptibles de réaliser des statistiques de visite. Cliquez ici pour plus d'informations