Appartement saint herblain f2 45.36 m2

— Saint-Herblain 44800 —
156 600 €
45 m²
2 pièces

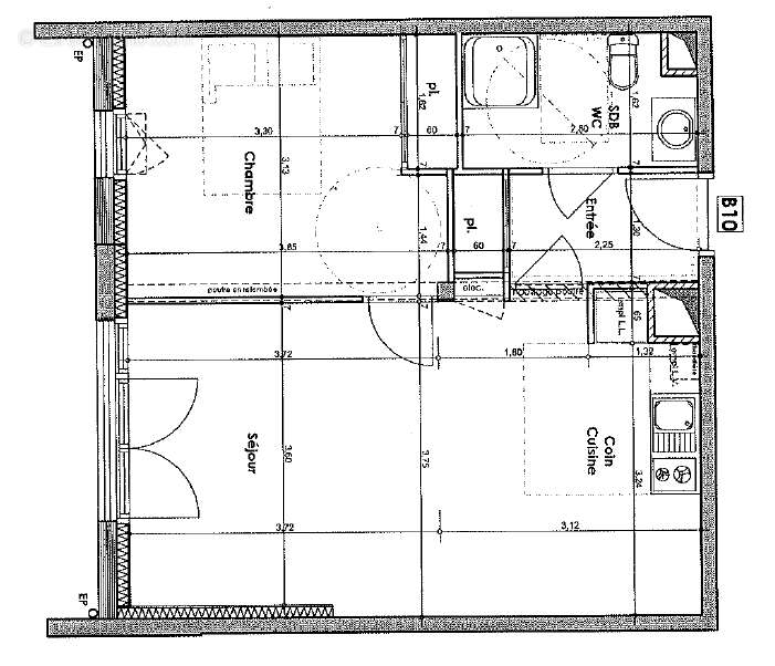
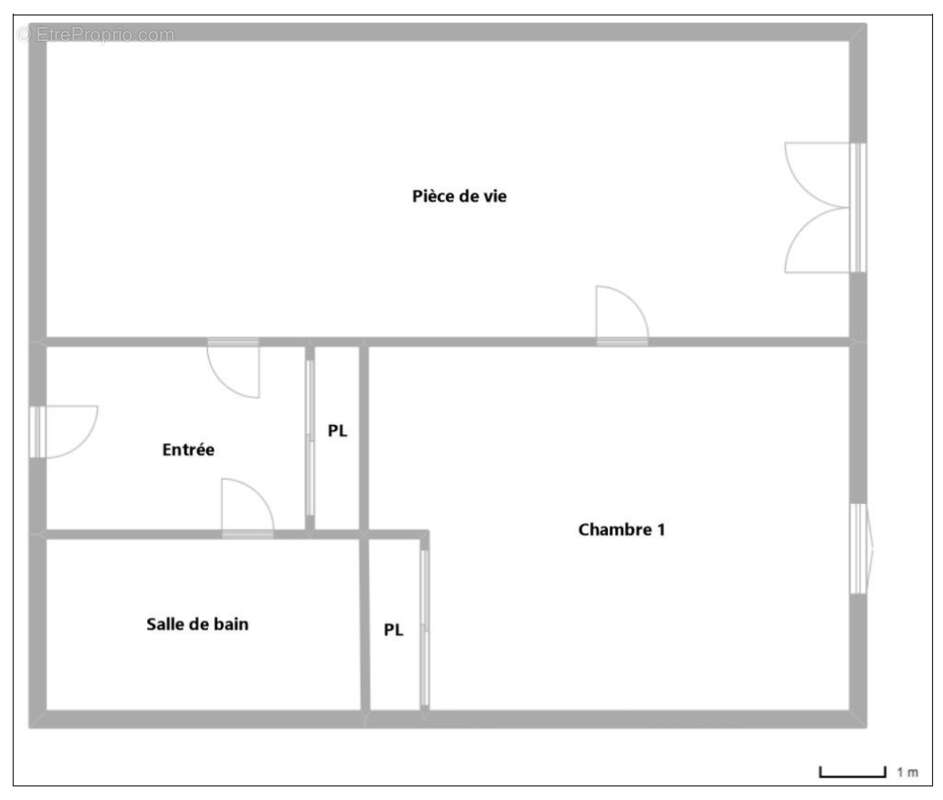
Bienvenue dans cet appartement lumineux et fonctionnel situé au 2ème étage d'un immeuble moderne. Avec une superficie de 45.36m², cet appartement offre un espace de vie confortable et bien agencé, avec volets électriques, interphone et ascenseur. La pièce principale, spacieuse et bien éclairée, offre de multiples possibilités d'aménagement pour créer un espace de vie chaleureux et accueillant. La cuisine, ouverte sur le salon, est équipée de placards de rangement de plaques et d'un petit frigo. La chambre, est lumineuse et calme. Dotée d'un espace de rangement intégré, elle offre tout le confort nécessaire. L'appartement bénéficie également d'un parking souterrain, offrant ainsi une solution pratique et sécurisée pour stationner votre véhicule en toute tranquillité. Situation géographique : Idéalement situé dans un quartier dynamique, vous trouverez à proximité immédiate toutes les commodités nécessaires : commerces, écoles, transports en commun. Arrêt de bus Grimm à 2 min à pied, Mairie de Saint-Herblain à 10 min à pied. Contact : Pour plus d'informations ou pour organiser une visite, n'hésitez pas à nous contacter au [Coordonnées masquées] ou par email à [Coordonnées masquées]. Nos agents se feront un plaisir de répondre à toutes vos questions et de vous accompagner dans votre projet immobilier. Superficie : 45.36m² Nombre de chambres : 1 Étage : 2ème Parking souterrain inclus (8.00 % honoraires TTC à la charge de l'acquéreur.) Copropriété de 42 lots (Pas de procédure en cours). Charges annuelles : 1000 euros.
Voir plus

Référence: 20240360
Bien en copropriété. Nombre de lots : 42. Charges de copropriété : 1000 €.
Honoraires d'agence de 8% à la charge de l'acquéreur
Barème des honoraires
DPE
A
B
C
D
E
F
G
GES
A
B
C
D
E
F
G

Prêt immobilier

Vous souhaitez connaître votre capacité d’emprunt et trouver le meilleur crédit immobilier ?
Réaliser une simulation gratuite

Appartement à SAINT-HERBLAIN
Appartement à SAINT-HERBLAIN
Appartement à SAINT-HERBLAIN
Appartement à SAINT-HERBLAIN
Appartement à SAINT-HERBLAIN
Appartement à SAINT-HERBLAIN
Appartement à SAINT-HERBLAIN
Appartement à SAINT-HERBLAIN
Appartement à SAINT-HERBLAIN
Appartement à SAINT-HERBLAIN
Appartement à SAINT-HERBLAIN
Appartement à SAINT-HERBLAIN
Appartement à SAINT-HERBLAIN
Ce site est protégé par reCAPTCHA la Politique de confidentialité et les Conditions d’utilisation de Google s’appliquent.
Obtenir un prêt immobilier au meilleur taux ?

En poursuivant votre navigation sans modifier vos paramètres, vous acceptez l'utilisation de cookies susceptibles de réaliser des statistiques de visite. Cliquez ici pour plus d'informations