Bénéficiez des services de nos partenaires locaux soigneusement sélectionnés
pour vous accompagner dans votre parcours d'achat immobilier

Terrain à vendre artemare

— Artemare 01510 —
70 200 €
481 m²
jardin

Nos partenaires locaux
Terrain à vendre sur la commune de Artemare d'une surface d'environ 481 m2.
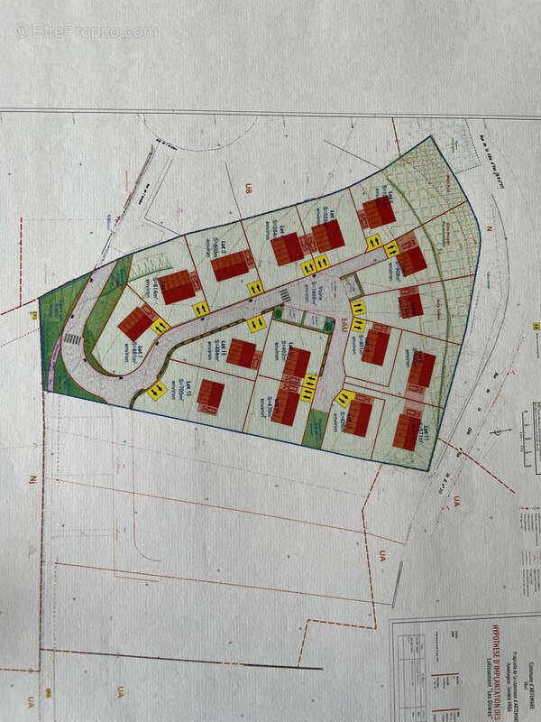
Un projet de construction ? vous avez trouvé la bonne annonce. LOT no1 Un lotissement de 16 Lots, libre constructeur. Nous pouvons également si vous le souhaitez vous accompagner avec un professionnel de la construction et une structure bancaire adaptée pour ne pas avoir les contraintes de chercher alors n'hésitez plus. Artemare petite ville d'environ 1300 habitants mais qui à tout d'une GRANDE avec toutes les commodités ( école primaire, collège, futur crèche, garderie, carrefour, pharmacie, médecin, dentiste, kiné, pompier, boulangerie, boucherie, fleuriste, banque, tabac, notaire, miltiple associations, garage, restaurants)
Amoureux de la nature entre Lacs et Montagnes, rando, vtt, ski.
Proche de toutes les commodités, écoles primaire, collége, centre ville, à 15 minutes de Belley, 10 minutes de culoz pour la Gare, GENEVE 45 minutes, LYON 1H00, ANNECY 50 minutes, AIX-LES-BAINS 40 minutes.
Pour tout complément d'information merci de contacter votre conseillier en immobilier Mr Raphaël LACHIZE au [Coordonnées masquées], inscrit au RSAC Bourg-En-Bresse no 832.499.644
Voir plus

Référence: 3422
Honoraires à la charge du vendeur.
Barème des honoraires

Prêt immobilier

Vous souhaitez connaître votre capacité d’emprunt et trouver le meilleur crédit immobilier ?
Réaliser une simulation gratuite

Terrain à ARTEMARE
Terrain à ARTEMARE
Terrain à ARTEMARE
Terrain à ARTEMARE
Terrain à ARTEMARE
Terrain à ARTEMARE
Ce site est protégé par reCAPTCHA la Politique de confidentialité et les Conditions d’utilisation de Google s’appliquent.
Obtenir un prêt immobilier au meilleur taux ?

En poursuivant votre navigation sans modifier vos paramètres, vous acceptez l'utilisation de cookies susceptibles de réaliser des statistiques de visite. Cliquez ici pour plus d'informations