Bénéficiez des services de nos partenaires locaux soigneusement sélectionnés
pour vous accompagner dans votre parcours d'achat immobilier

Mieux qu'un appartement, maison de type 4

— Tignieu-Jameyzieu 38230 —
239 900 €
92 m² / 170 m²
4 pièces
parkingjardin

Nos partenaires locaux
Travaux en cours de réalisation.
Au coeur d'un espace résidentiel, limite TIGNIEU-JAMEYZIEU, commercialisé exclusivement en BRS ( Bail réel solidaire)
Ecoles, collège et commerces accessibles à pieds, au sein d'un ensemble immobilier de 8 habitations, résidence fermée et sécurisée avec portail motorisé et interphone.
Rare et exclusif, venez découvrir cette maison neuve de 92m2 utiles dont 81m2 habitables.
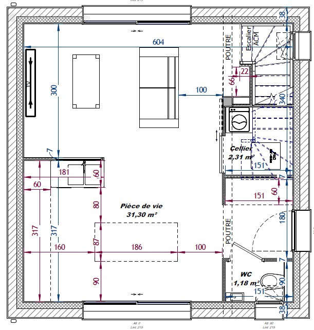
Composée au rez-de-chaussée d'une pièce principale de vie de plus de 30m2 avec espace cuisine, WC et cellier.
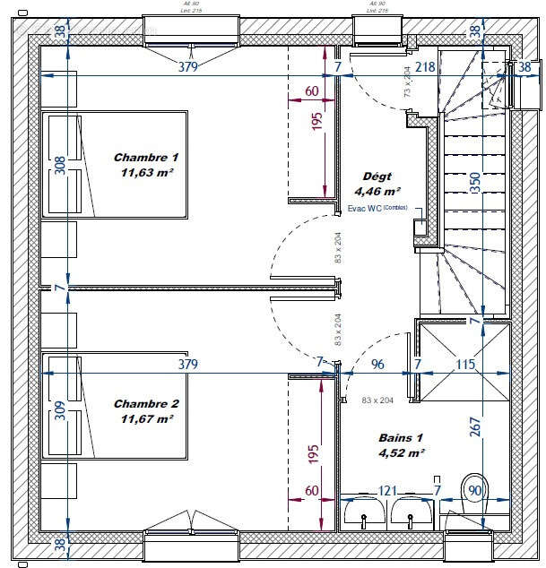
L'étage se compose de deux chambres de 11.65m2 chacune avec emplacement placard mural, SDB entièrement aménagée avec meuble vasque et miroir, WC.
Le plus de cette habitation, vous disposerez d'un deuxième étage sous combles aménagé d'environ 25m2 utiles, possibilité d'ajouter une salle de bain afin de créer une suite parentale. Le bien est cédé avec une place de stationnement et un garage.
Cette habitation bénéficie d'une jouissance privative d'une parcelle de terrain d'environ 180m2, engazonnement, clôtures séparatives et portillon inclus.
Prestations de qualité RE 2020: chauffage au sol par pompe à chaleur, volets roulants électriques, double vitrage PVC et baies aluminium, enduit façade gratté, bandeaux PVC, tuiles terre cuite, zinguerie aluminium, carrelage 45 x 45 dans la pièce de vie, parquet dans les chambres, faience dans la salle de bain (10m2), WC suspendus...

A réserver rapidement !
Voir plus

Référence: 1784B
Bien en copropriété. Nombre de lots : 8.
Honoraires à la charge du vendeur.
Barème des honoraires
DPE
A
B
C
D
E
F
G
GES
A
B
C
D
E
F
G

Prêt immobilier

Vous souhaitez connaître votre capacité d’emprunt et trouver le meilleur crédit immobilier ?
Réaliser une simulation gratuite

Maison à TIGNIEU-JAMEYZIEU
Maison à TIGNIEU-JAMEYZIEU
Maison à TIGNIEU-JAMEYZIEU
Maison à TIGNIEU-JAMEYZIEU
Maison à TIGNIEU-JAMEYZIEU
Maison à TIGNIEU-JAMEYZIEU
Maison à TIGNIEU-JAMEYZIEU
Maison à TIGNIEU-JAMEYZIEU
Maison à TIGNIEU-JAMEYZIEU
Ce site est protégé par reCAPTCHA la Politique de confidentialité et les Conditions d’utilisation de Google s’appliquent.
Obtenir un prêt immobilier au meilleur taux ?

En poursuivant votre navigation sans modifier vos paramètres, vous acceptez l'utilisation de cookies susceptibles de réaliser des statistiques de visite. Cliquez ici pour plus d'informations