Bénéficiez des services de nos partenaires locaux soigneusement sélectionnés
pour vous accompagner dans votre parcours d'achat immobilier

À vendre - levallois-perret louise michel - appartement familial 4 pièces avec balcon de 85.67 m²

— Levallois-Perret 92300 —
899 000 €
86 m²
4 pièces
parkingbalcon/terrasseascenseur

Nos partenaires locaux
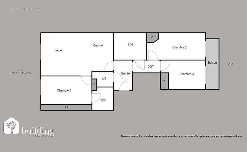
Situé à proximité immédiate du métro Louise Michel, BUILDING PARTNERS vous propose à la vente ce magnifique appartement familial de 4 pièces, d'une surface de 85.67 m², situé au 3e étage d'un immeuble de grand standing construit en 2015. En excellent état, ce bien traversant offre des prestations haut de gamme et un agencement parfaitement optimisé. Il se compose d'une entrée, d'un vaste séjour/salle à manger lumineux avec cuisine ouverte entièrement aménagée et équipée, de trois chambres dont une suite parentale avec salle d'eau attenante, d'une salle de bains et de WC séparés. Deux chambres bénéficient d'un accès direct à un balcon de 8.55 m², au calme sur cour. Nombreux rangements intégrés. L'appartement séduit par ses matériaux de qualité, son confort moderne et sa localisation recherchée, à proximité des commerces, écoles, transports et espaces verts. Une cave complète ce bien. Un emplacement de parking en sous-sol est disponible en sus du prix. Ce bien rare à la vente séduira une famille à la recherche d'un cadre de vie élégant, fonctionnel et central. N'hésitez pas à nous contacter pour plus d'informations ou organiser une visite. Les informations sur les risques auxquels ce bien est exposé sont disponibles sur le site Géorisques : www.georisques.gouv.fr Depuis 1993, BUILDING PARTNERS accompagne les propriétaires dans la vente de biens immobiliers de standing sur l'ouest parisien. Notre force ? Une organisation unique avec deux rôles experts : >Les Brokers, spécialisés dans la prospection et la valorisation de votre bien. >Les Sellers, experts en négociation et en mise en relation avec notre portefeuille d'acheteurs qualifiés. Avec 5 agences implantées au coeur des quartiers les plus recherchés (Paris 16e, Paris 17e, Neuilly, Levallois, Courbevoie), nous vous offrons une visibilité maximale, un accompagnement personnalisé et un engagement total jusqu'à la signature. Confiez-nous votre bien pour une vente rapide, au meilleur prix. Estimation offerte, confidentielle et sans engagement. Copropriété de 3 lots - dont 1 lots habitation. (Pas de procédure en cours). Charges annuelles : 2712 euros.
Voir plus

Bien en copropriété. Nombre de lots : 3. Charges de copropriété : 2712 €.
Honoraires à la charge du vendeur.
Barème des honoraires
DPE
A
B
C
D
E
F
G
GES
A
B
C
D
E
F
G

Prêt immobilier

Vous souhaitez connaître votre capacité d’emprunt et trouver le meilleur crédit immobilier ?
Réaliser une simulation gratuite

Appartement à LEVALLOIS-PERRET
Appartement à LEVALLOIS-PERRET
Appartement à LEVALLOIS-PERRET
Appartement à LEVALLOIS-PERRET
Appartement à LEVALLOIS-PERRET
Appartement à LEVALLOIS-PERRET
Appartement à LEVALLOIS-PERRET
Appartement à LEVALLOIS-PERRET
Appartement à LEVALLOIS-PERRET
Appartement à LEVALLOIS-PERRET
Appartement à LEVALLOIS-PERRET
Appartement à LEVALLOIS-PERRET
Appartement à LEVALLOIS-PERRET
Ce site est protégé par reCAPTCHA la Politique de confidentialité et les Conditions d’utilisation de Google s’appliquent.
Obtenir un prêt immobilier au meilleur taux ?

En poursuivant votre navigation sans modifier vos paramètres, vous acceptez l'utilisation de cookies susceptibles de réaliser des statistiques de visite. Cliquez ici pour plus d'informations