Bénéficiez des services de nos partenaires locaux soigneusement sélectionnés
pour vous accompagner dans votre parcours d'achat immobilier

A vendre terrain constructible de 1254 m2 à dardilly

— Dardilly 69570 —
320 000 €
1 254 m²
jardin

Nos partenaires locaux
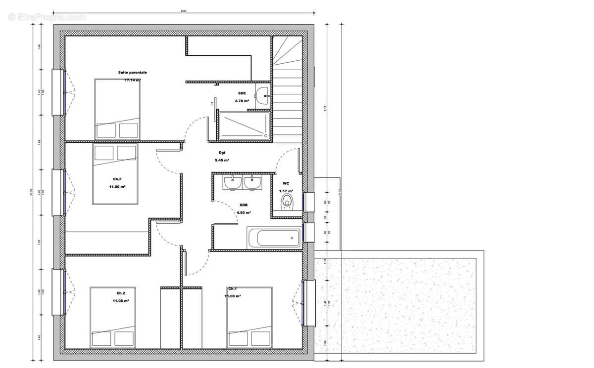
Exclusivité IMMOBILIERE DE SALVAGNY - Opportunité... Permis de construire accepté et Libre de constructeur !!! Terrain plat situé sur la commune de Dardilly d'une surface de 1254 m2 (dont 1131m2 utiles) avec un CES de 8 % permettant la construction d'une maison d'environ 132 m2 habitables + garage. Maison disposant au RDC d'une pièce de vie de 60 m2 orientée plein ouest, d'une buanderie, d'un WC séparé et d'un garage. A l'étage, une suite parentale avec salle d'eau et dressing, trois chambres enfants, une salle de bains, WC séparé. Viabilités en bordure. Bus TCL à proximité immédiate. Accès A89 et M6 à 5 minutes. Renseignements et visites : Sylvie MACHADO - Immobilière de Salvagny by Pierrefeu Immobilier
Implantée depuis 2015, Immobilière de Salvagny by Pierrefeu Immobilier est une agence experte dans les domaines suivants : VENTE, ACHAT, LOCATION, GESTION et SYNDIC DE COPROPRIETE. La dimension humaine est au coeur de notre action commerciale. Nous partageons des valeurs fondées autour de la PROXIMITE, de l’EFFICACITE et de la CONVIVIALITE. Parce que chaque projet de vie est unique, nous vous offrons un service personnalisé pour être plus proche de vos attentes.
Voir plus

Référence: 583
Honoraires à la charge du vendeur.
Barème des honoraires

Prêt immobilier

Vous souhaitez connaître votre capacité d’emprunt et trouver le meilleur crédit immobilier ?
Réaliser une simulation gratuite

Terrain à DARDILLY
Terrain à DARDILLY
Terrain à DARDILLY
Terrain à DARDILLY
Terrain à DARDILLY
Terrain à DARDILLY
Terrain à DARDILLY
Terrain à DARDILLY
Ce site est protégé par reCAPTCHA la Politique de confidentialité et les Conditions d’utilisation de Google s’appliquent.
Obtenir un prêt immobilier au meilleur taux ?

En poursuivant votre navigation sans modifier vos paramètres, vous acceptez l'utilisation de cookies susceptibles de réaliser des statistiques de visite. Cliquez ici pour plus d'informations