Bénéficiez des services de nos partenaires locaux soigneusement sélectionnés
pour vous accompagner dans votre parcours d'achat immobilier

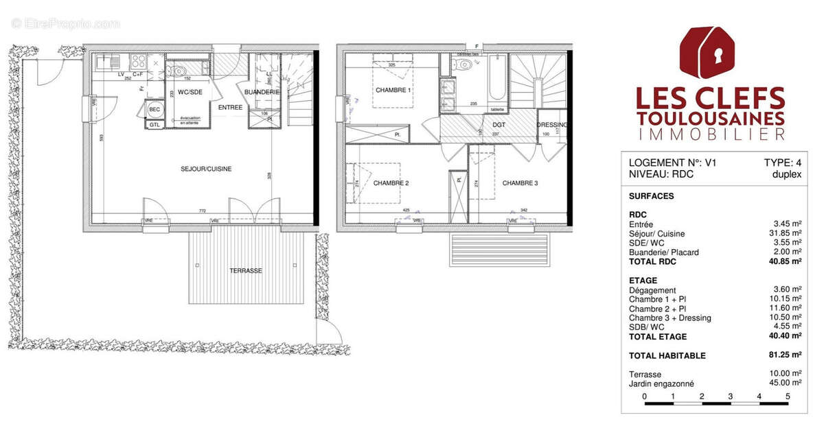
Villa toulouse 4 pièces de 82 m2 avec jardin / terrasse / 2 parking.

— Toulouse 31200 —
349 000 €
82 m²
4 pièces

Nos partenaires locaux
MAISON 4 pièces de 82m² sur deux niveaux avec terrasse en bois de 10m² et jardin faisant l'angle, située dans une petite résidence sécurisée de seulement 19 logements, quartier CROIX-DAURADE. -Espace séjour / cuisine lumineux donnant sur un agréable extérieur faisant le tour de la maison. -3 grandes chambres à l'étage avec placards. -Salle de bain à l'étage avec double vasque + WC + sèche serviettes. -Salle d'eau en RDC avec WC. -Espace buanderie. -2 places de parking en sous--sol avec accès sécurisé. Maxime FONTENELLE LES CLEFS TOULOUSAINES
Voir plus

Barème des honoraires

Prêt immobilier

Vous souhaitez connaître votre capacité d’emprunt et trouver le meilleur crédit immobilier ?
Réaliser une simulation gratuite

Maison à TOULOUSE
Maison à TOULOUSE
Maison à TOULOUSE
Maison à TOULOUSE
Maison à TOULOUSE
Maison à TOULOUSE
Maison à TOULOUSE
Maison à TOULOUSE
Maison à TOULOUSE
Maison à TOULOUSE
Maison à TOULOUSE
Maison à TOULOUSE
Ce site est protégé par reCAPTCHA la Politique de confidentialité et les Conditions d’utilisation de Google s’appliquent.
Obtenir un prêt immobilier au meilleur taux ?

En poursuivant votre navigation sans modifier vos paramètres, vous acceptez l'utilisation de cookies susceptibles de réaliser des statistiques de visite. Cliquez ici pour plus d'informations