Bénéficiez des services de nos partenaires locaux soigneusement sélectionnés
pour vous accompagner dans votre parcours d'achat immobilier

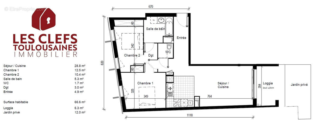
Appartement 3 pièces 67 m2 + terrasse et jardin !!!

— Toulouse 31200 —
270 900 €
67 m²
3 pièces

Nos partenaires locaux
COEUR QUARTIER MINIMES !!! Appartement 3 pièces de 67m² avec 19m² de loggia + jardin sans vis-à-vis, situé dans une résidence intimiste au coeur du quartier des Minimes au pied du métro et de ses commerces. -Agréable séjour lumineux de 30m² ouvert sur cuisine, le tout donnant accès à cet agréable extérieur. -2 grandes chambres . -Salle de bain avec sèche serviettes et emplacement lave linge. -WC séparé. Maxime FONTENELLE LES CLEFS TOULOUSAINES

Barème des honoraires

Prêt immobilier

Vous souhaitez connaître votre capacité d’emprunt et trouver le meilleur crédit immobilier ?
Réaliser une simulation gratuite

Appartement à TOULOUSE
Appartement à TOULOUSE
Appartement à TOULOUSE
Appartement à TOULOUSE
Appartement à TOULOUSE
Appartement à TOULOUSE
Appartement à TOULOUSE
Appartement à TOULOUSE
Ce site est protégé par reCAPTCHA la Politique de confidentialité et les Conditions d’utilisation de Google s’appliquent.
Obtenir un prêt immobilier au meilleur taux ?

En poursuivant votre navigation sans modifier vos paramètres, vous acceptez l'utilisation de cookies susceptibles de réaliser des statistiques de visite. Cliquez ici pour plus d'informations