A vendre à sanguinet terrain à bâtir

— Sanguinet 40460 —
180 200 €
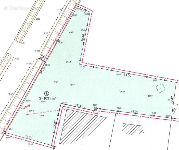
1 031 m²
jardin

Terrain non viabilisé de 1 031 m2 situé dans un quartier résidentiel calme, à proximité du centre-ville de Sanguinet et à seulement quelques pas du lac et Idéalement situé à 15 min de Biscarrosse et 20 min du bassin d’Arcachon.
Libre de tout constructeur, vous aurez la Possibilité de construire une maison avec une emprise au sol d’environ 110 m2 et une dépendance d’environ 60 m2.
Pour toute demande de renseignements ou pour organiser une visite, merci de contacter l’agence Quiétude Immo.
Voir plus

Référence: 115
Honoraires d'agence de 6% à la charge de l'acquéreur
Barème des honoraires

Prêt immobilier

Vous souhaitez connaître votre capacité d’emprunt et trouver le meilleur crédit immobilier ?
Réaliser une simulation gratuite

Terrain à SANGUINET
Terrain à SANGUINET
Terrain à SANGUINET
Terrain à SANGUINET
Terrain à SANGUINET
Terrain à SANGUINET
Ce site est protégé par reCAPTCHA la Politique de confidentialité et les Conditions d’utilisation de Google s’appliquent.
Obtenir un prêt immobilier au meilleur taux ?

En poursuivant votre navigation sans modifier vos paramètres, vous acceptez l'utilisation de cookies susceptibles de réaliser des statistiques de visite. Cliquez ici pour plus d'informations