Bénéficiez des services de nos partenaires locaux soigneusement sélectionnés
pour vous accompagner dans votre parcours d'achat immobilier

Vente appartement a gif sur yvette - 3 pieces

— Gif-Sur-Yvette 91190 —
399 000 €
62 m²
3 pièces
ascenseur

Nos partenaires locaux
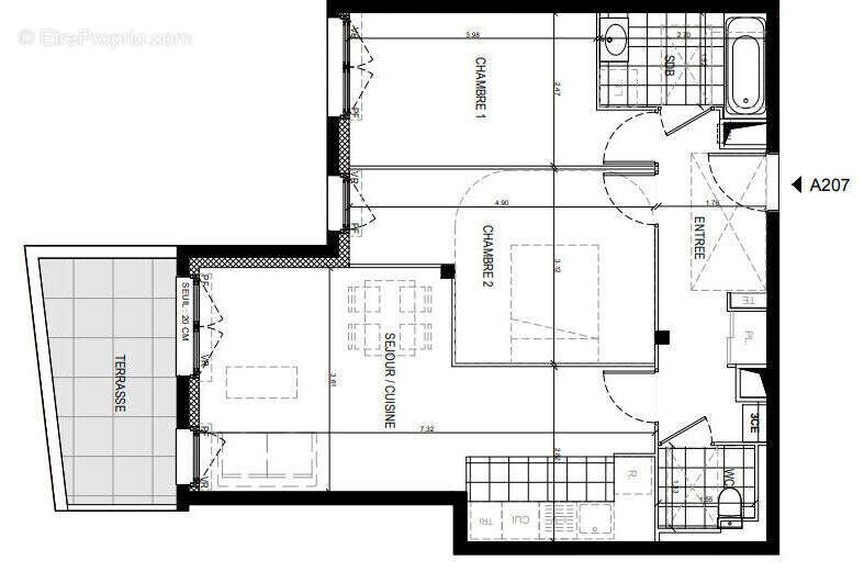
Les agences TOIT ET MOI vous présentent cet appartement de 3 pièces, idéalement situé à moins de 5min à pied du centre de Gif et à 2 pas de la gare RER, dans une petite résidence offrant de très belles prestations, disponible au printemps 2026. Il se trouve au premier étage avec ascenseur. Fonctionnel et lumineux, l'appartement est exposé plein sud. Il comprend une pièce de vie, une terrasse, deux chambres et une salle de bains. Vous profiterez également d'une place de stationnement en sous-sol. Un vrai plus : une liaison piétonne relie directement la résidence au parc de la mairie. Idéal pour résider en centre ville de Gif dans une résidence neuve ou pour réaliser un investissement locatif. Venez vous renseigner auprès de nos conseillers pour plus de détails, et visualiser les maquettes 3D disponibles à l'agence !
Voir plus

Honoraires à la charge du vendeur.
Barème des honoraires

Prêt immobilier

Vous souhaitez connaître votre capacité d’emprunt et trouver le meilleur crédit immobilier ?
Réaliser une simulation gratuite

Appartement à GIF-SUR-YVETTE
Appartement à GIF-SUR-YVETTE
Appartement à GIF-SUR-YVETTE
Appartement à GIF-SUR-YVETTE
Ce site est protégé par reCAPTCHA la Politique de confidentialité et les Conditions d’utilisation de Google s’appliquent.
Obtenir un prêt immobilier au meilleur taux ?

En poursuivant votre navigation sans modifier vos paramètres, vous acceptez l'utilisation de cookies susceptibles de réaliser des statistiques de visite. Cliquez ici pour plus d'informations