[jean] ensemble immobilier en hyper centre de douai – idéal investissement ou usage professionnel

— Douai 59500 —
264 850 €
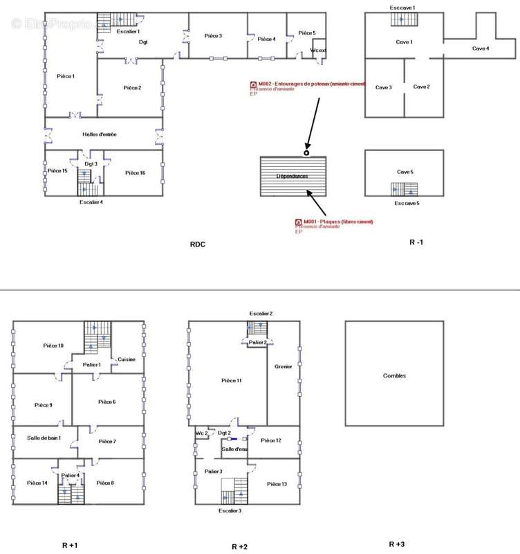
400 m² / 95 m²
10 pièces
jardin

Découvrez ce bien au cœur de Douai, parfait pour des investisseurs, marchands de biens ou professions libérales.
Seulement à quelques minutes de la gare TGV, des commerces, écoles et universités. Cet ensemble unique est composé de deux maisons reliées par un porche centrale totalisant 368 m² sur trois niveaux.

Points clés :

- Flexibilité : Possibilité de division en plusieurs unités locatives ou aménagement en bureaux, locaux professionnels.
- Travaux à prévoir : Arrangement des pièces en fonction des besoins.
- Emplacement stratégique : Hyper-centre, proche des différents besoins.

Avantages investisseurs

- Division en plusieurs appartements locatifs pour maximiser le rendement.
- Transformation du jardin en espace de stationnement pour ajouter de la praticité.
- Le rez-de-chaussée est un local professionnel et peut être transformé en habitation.
-Bonne demande locative : Notamment étudiants et jeunes actifs
- Prix attractif : Potentiel de forte valorisation après rénovation et/ou division

Prix : 264 850 € FAI

Pour plus d’informations ou pour organiser une visite, contactez-nous dès aujourd'hui !
Voir plus

Référence: [JEAN]
Barème des honoraires
DPE
A
B
C
D
E
F
G
GES
A
B
C
D
E
F
G

Prêt immobilier

Vous souhaitez connaître votre capacité d’emprunt et trouver le meilleur crédit immobilier ?
Réaliser une simulation gratuite

Appartement à DOUAI
Appartement à DOUAI
Appartement à DOUAI
Appartement à DOUAI
Appartement à DOUAI
Appartement à DOUAI
Appartement à DOUAI
Appartement à DOUAI
Appartement à DOUAI
Appartement à DOUAI
Appartement à DOUAI
Ce site est protégé par reCAPTCHA la Politique de confidentialité et les Conditions d’utilisation de Google s’appliquent.
Obtenir un prêt immobilier au meilleur taux ?

En poursuivant votre navigation sans modifier vos paramètres, vous acceptez l'utilisation de cookies susceptibles de réaliser des statistiques de visite. Cliquez ici pour plus d'informations