Chalet neuf en cours de construction (liv. fin 25) à saint gervais les bains

— Saint-Gervais-Les-Bains 74170 —
900 000 €
97 m² / 800 m²
4 pièces
parkingjardin

A moins de 5mn en voiture du centre-ville , ce chalet en cours de construction (livraison fin 2025) bénéficiera des dernières normes d'isolation (RT 2020) garantissant des économies d'énergie au quotidien et de frais d'acquisition (notaire) réduits .
De finitions haut de gamme, ces dernières peuvent encore être adaptées à vos gouts concernant le choix des matériaux, les couleurs et l'aménagement.
Dans un secteur très calme et ensoleillé, il vous donne un accès direct aux chemins de randonnées du domaine du Prarion.
Ce chalet lumineux compte tenu de ses nombreuses baies vitrées et de son orientation Ouest vous permettra de profiter d'une très belle vue sur la vallée du Mont-Blanc et de son couché de soleil sur la chaine des Aravis.
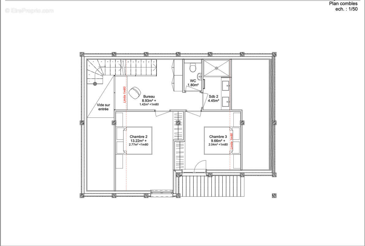
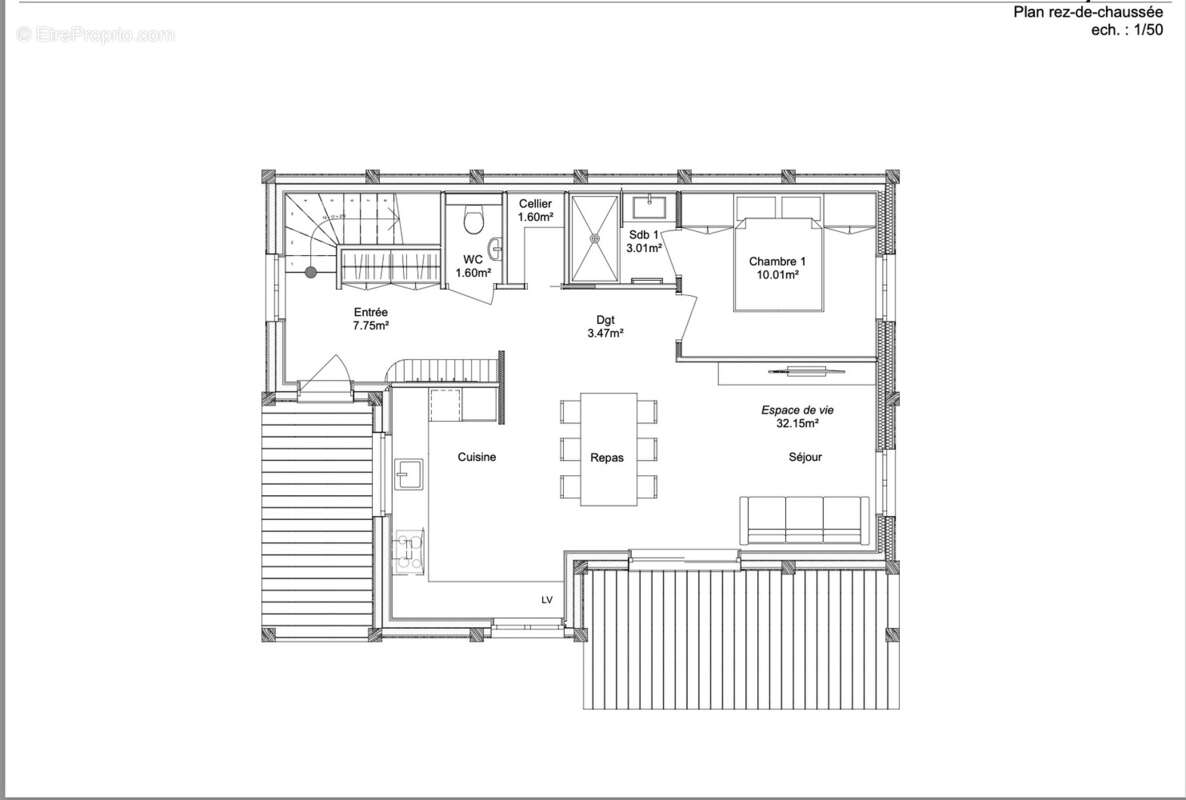
De type T4, l'intérieur compte une cuisine équipée ouverte sur un coin salon de 32m2 ainsi que 3 chambres et deux salle de bain; la domotique présente dans chacune des pièces sera pour vous un gage de confort et de quiétude.
Sa surface plancher intérieure de 97.88m2 a été savamment pensée pour que son utilisation vous soit la plus agréable possible lorsque vous serez en famille ou avec des amis.
A cette surface, il convient de rajouter un vide sanitaire isolé de 40m2 d'une hauteur de 2,50m, accessible par une entrée indépendante.
Pour déjeuner à plusieurs, vous disposerez d'un jardin en pleine nature avec un terrain qui plaira certainement aux enfants qui y verront un bel espace de jeu.
Ce chalet dispose de 2 places de parking extérieur.
Le prix de vente s'élève à 900 000 € FAI.
JB CONSEIL se tient à votre disposition si vous voulez planifier une visite sur site.
'Les informations sur les risques auxquels ce bien est exposé sont disponibles sur le site Géorisques : https://www.georisques.gouv.fr '
Voir plus

Honoraires à la charge du vendeur.
Barème des honoraires

Prêt immobilier

Vous souhaitez connaître votre capacité d’emprunt et trouver le meilleur crédit immobilier ?
Réaliser une simulation gratuite

Maison à SAINT-GERVAIS-LES-BAINS
Maison à SAINT-GERVAIS-LES-BAINS
Maison à SAINT-GERVAIS-LES-BAINS
Maison à SAINT-GERVAIS-LES-BAINS
Ce site est protégé par reCAPTCHA la Politique de confidentialité et les Conditions d’utilisation de Google s’appliquent.
Obtenir un prêt immobilier au meilleur taux ?

En poursuivant votre navigation sans modifier vos paramètres, vous acceptez l'utilisation de cookies susceptibles de réaliser des statistiques de visite. Cliquez ici pour plus d'informations