Bénéficiez des services de nos partenaires locaux soigneusement sélectionnés
pour vous accompagner dans votre parcours d'achat immobilier

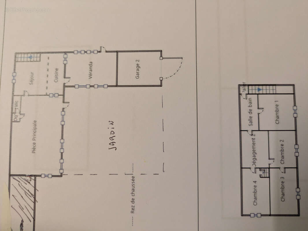
Nevers colbert maison de ville 150 m2habitable garage jardin

— Nevers 58000 —
88 000 €
150 m² / 295 m²
7 pièces
parkingbalcon/terrassejardin

Nos partenaires locaux
NEVERS Quartier Colbert victor hugo à 3Mn à pied du centre ville dans quartier résidentiel, maison de ville surface 150 m2 habitable et garage comprenant au rez de chaussée séjour salon 54 m2 sol carrelage avec baies aluminium coulissantes, cuisine avec coin repas 20 m2, salon d'été 18 m2 , au 1er étage bureau 12 m2 salle de bains wc, 4 chambres de 17 m2 13 m2 12.68 m2 12 m2 Grenier sur l'ensemble.Chauffage central gaz.. Parking 2 voitures à l'intérieur de la propriété plus garage. , Jardin surface totale 295 m2. Diagnostique DPE 245 (E) risque naturel et technologique sur georisquesi.gouv Affaire à saisir très rapidement pour ce quartier résidentiel recherché pour sa proximité de tous services PRIX 88 000 € frais agence charge vendeur.;quelques travaux au 1er étage à prévoir UrgentTous renseignements Actimmo58 Nevers tel [Coordonnées masquées]
Voir plus

Bien en copropriété. Nombre de lots : 8.
Barème des honoraires
DPE
A
B
C
D
E
F
G
GES
A
B
C
D
E
F
G

Prêt immobilier

Vous souhaitez connaître votre capacité d’emprunt et trouver le meilleur crédit immobilier ?
Réaliser une simulation gratuite

Maison à NEVERS
Maison à NEVERS
Maison à NEVERS
Maison à NEVERS
Maison à NEVERS
Maison à NEVERS
Maison à NEVERS
Maison à NEVERS
Maison à NEVERS
Maison à NEVERS
Maison à NEVERS
Maison à NEVERS
Maison à NEVERS
Maison à NEVERS
Maison à NEVERS
Maison à NEVERS
Ce site est protégé par reCAPTCHA la Politique de confidentialité et les Conditions d’utilisation de Google s’appliquent.
Obtenir un prêt immobilier au meilleur taux ?

En poursuivant votre navigation sans modifier vos paramètres, vous acceptez l'utilisation de cookies susceptibles de réaliser des statistiques de visite. Cliquez ici pour plus d'informations