Bénéficiez des services de nos partenaires locaux soigneusement sélectionnés
pour vous accompagner dans votre parcours d'achat immobilier

Murs commerciaux neufs au sein d'un projet immobilier - senas

— Senas 13560 —
2 750 €
700 m²

Nos partenaires locaux
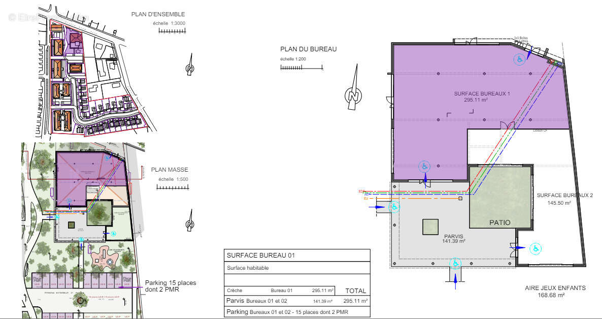
Dans un ensemble immobilier neuf comprenant 110 logements, deux bâtiments lot H et E à destination de bureaux, services et libérales
- Lot H : 180 m2 en RDC + 90 m2 en R+1, 9 places de parking attribués au lot
- Lot E : local 1 de 295m2 encore disponible,10 places de parking attribués au lot. Pour information, une micro-crèche sera également implantée sur ce batiment.
Les locaux seront livrés brut avec fluides en attente
Prix de vente : 2750 € ttc / m2. Disponibilité T1 2026.
Pour plus d'informations, nous restons à votre disposition. Avenir&Patrimoine est enregistrée au RCS de Salon de Provence sous le no 5[Coordonnées masquées]042 et détient une CT no CPI131[Coordonnées masquées]1976 délivré par la CCI Marseille-Provence. Si vous souhaitez visiter rapidement ce bien, n'hésitez pas à nous contacter au [Coordonnées masquées] ou [Coordonnées masquées] - 51, rue Massenet - 13300 Salon de Provence
Contact commercial - Cathy PEREZ / [Coordonnées masquées]
Voir plus

Référence: 191
Barème des honoraires

Prêt immobilier

Vous souhaitez connaître votre capacité d’emprunt et trouver le meilleur crédit immobilier ?
Réaliser une simulation gratuite

Commerce à SENAS
Commerce à SENAS
Commerce à SENAS
Commerce à SENAS
Commerce à SENAS
Ce site est protégé par reCAPTCHA la Politique de confidentialité et les Conditions d’utilisation de Google s’appliquent.
Obtenir un prêt immobilier au meilleur taux ?

En poursuivant votre navigation sans modifier vos paramètres, vous acceptez l'utilisation de cookies susceptibles de réaliser des statistiques de visite. Cliquez ici pour plus d'informations