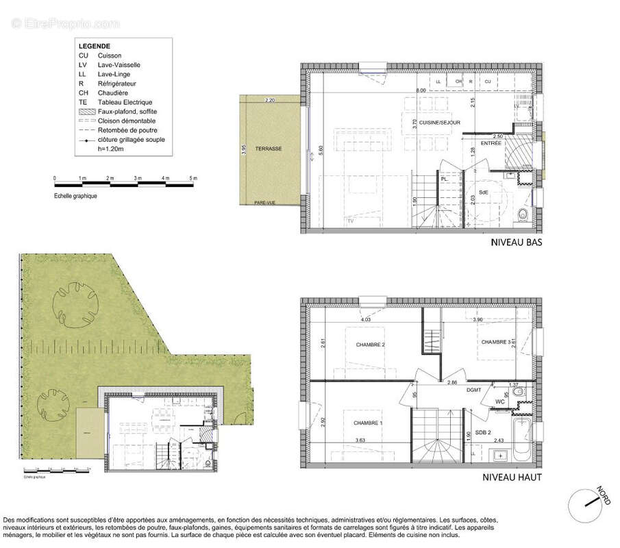
Sur la commune de NEYDENS (74160), à 10 min de la douane de Croix de Rozon - 20 minutes de GENEVE et de l'aéroport, à proximité des écoles, crèche, commerces et accès autoroute. Vue dégagée sur les champs, compromis entre maison et appartement de type 4 en duplex de 80 m2 avec sa terrasse et son jardin. Au rez de chaussée une entrée, un espace cuisine ouverte sur la pièce de vie, un wc avec lave-mains et possibilité d'installer une douche, à l'étage trois chambres, une salle de bains et un wc indépendant.Chauffage par pompe à chaleur au sol sur les deux niveaux. Pour compléter ce bien deux places de parking extérieures et une cave. Possibilité d'acquérir un garage et/ou un place de parking en sous-sol. FRAIS DE NOTAIRE REDUIT - PRIX PROMOTEUR - Dispositif de défiscalisation : PINEL, LMNP, LMP
En poursuivant votre navigation sans modifier vos paramètres, vous acceptez l'utilisation de cookies susceptibles de réaliser des statistiques de visite.
Cliquez ici pour plus d'informations