Villa manhattan - villa neuve de standing + piscine à saint andré chemin lefaguyes

— Saint-Andre 97440 —
345 000 €
92 m²
4 pièces
piscine

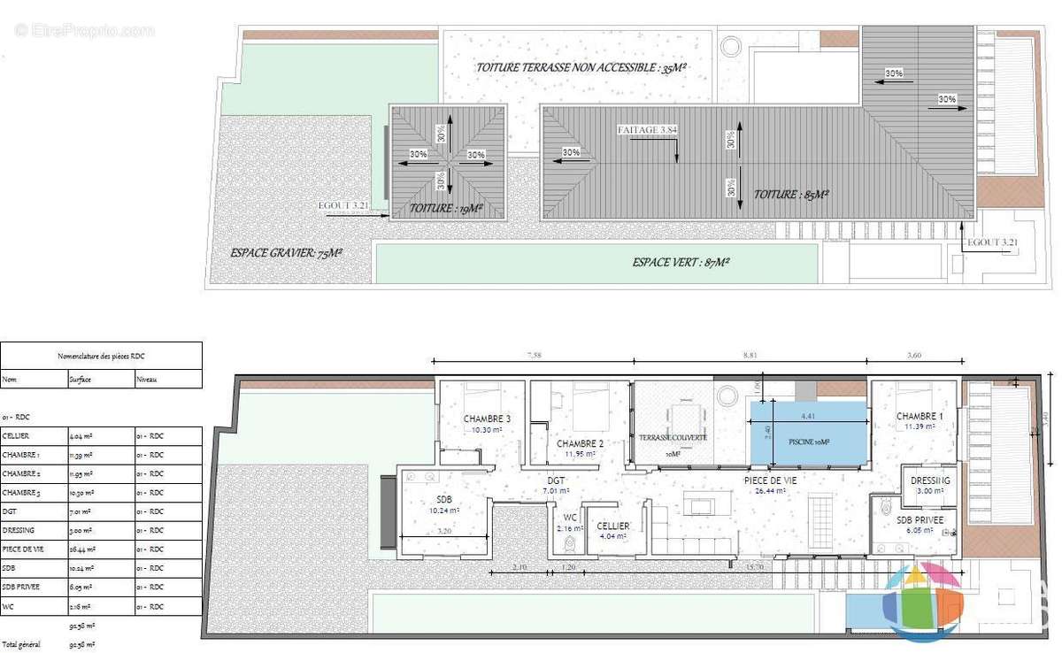
Projet villa neuve contemporaine et de standing de 92,58m² (surface habitable) + piscine, sur une parcelle de 406m2 (dont environ 322m² exploitables). Située dans une résidence privée dans le secteur de chemin LEFAGUYES, à proximité de la ville et des centres commerciaux et accessible en moins de 2 min de la 4 voies. Elle offrira un cadre de vie intime à leurs futurs propriétaires tout en garantissant l'accès à toutes les commodités. Conçue sur la base d'une architecture moderne (en plain-pied) avec des matériaux nobles, la villa MANHATTAN nous plonge dès l'entrée, dans une pièce de vie conviviale composée d'un coin salon, de la cuisine ouverte et d'une salle à manger prolongée par une terrasse couverte donnant accès une magnifique piscine en pierres naturelles (incluse dans le prix). Elle comprend trois chambres et deux salles de bains. Parmi les chambres, la villa MANHATTAN vous propose une très belle suite de maîtres pour votre plus grand confort. En résumé, cette villa offrira donc un séjour/cuisine aménagée, un salon, un cellier, une suite parentale + deux chambres, deux salles de bains, deux WC, une terrasse couverte. Une piscine est également incluse. Au prix de 345.000€ (prix parcelle seule de 160.000€). Honoraires à la charge du vendeur. Mandat simple express. Infos/visites contacter DELMAS Yann agent mandataire indépendant du réseau TEKA IMMO. Tel: [Coordonnées masquées] Inscrit au RSAC de Saint Denis sous le n° 832640825. Barème des honoraires visible sur notre site internet TEKA IMMO https://tekaimmo.fr/honoraires.pdf. Annonce rédigée sous la responsabilité éditoriale de l'agent. Les informations sur les risques naturels (séisme, inondations, volcans etc.) auxquels ce bien est exposé sont disponibles sur le site georisque : www.georisque.gouv.fr\n
Voir plus

Référence: 6050YDbis
Honoraires à la charge du vendeur.
Barème des honoraires

Prêt immobilier

Vous souhaitez connaître votre capacité d’emprunt et trouver le meilleur crédit immobilier ?
Réaliser une simulation gratuite

Maison à SAINT-ANDRE
Maison à SAINT-ANDRE
Maison à SAINT-ANDRE
Maison à SAINT-ANDRE
Maison à SAINT-ANDRE
Maison à SAINT-ANDRE
Maison à SAINT-ANDRE
Maison à SAINT-ANDRE
Maison à SAINT-ANDRE
Maison à SAINT-ANDRE
Maison à SAINT-ANDRE
Maison à SAINT-ANDRE
Maison à SAINT-ANDRE
Ce site est protégé par reCAPTCHA la Politique de confidentialité et les Conditions d’utilisation de Google s’appliquent.
Obtenir un prêt immobilier au meilleur taux ?

En poursuivant votre navigation sans modifier vos paramètres, vous acceptez l'utilisation de cookies susceptibles de réaliser des statistiques de visite. Cliquez ici pour plus d'informations