Bénéficiez des services de nos partenaires locaux soigneusement sélectionnés
pour vous accompagner dans votre parcours d'achat immobilier

Exceptionnel - 4p - terrasse - avant dernier etage

— Nice 06000 —
960 000 €
92 m²
4 pièces
parkingbalcon/terrasseascenseuraccès handicapé

Nos partenaires locaux
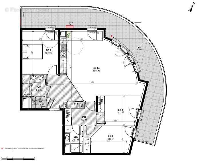
Découvrez ce superbe 4 pièces de 92 m² au 5ème étage d'une résidence neuve et prestigieuse au cœur du quartier prisé de la Libération à Nice.

Le vaste séjour/cuisine de 43 m² s'ouvre sur une magnifique terrasse de 40 m², parfaite pour des moments de détente avec vue dégagée.

L'appartement dispose de trois chambres spacieuses avec placards, dont une suite parentale avec salle d'eau, une salle de bains et des WC séparés.
Possibilité d'acquérir deux box en sous-sol en sus du prix de vente.

La résidence se distingue par son architecture soignée et son ambiance intimiste. Idéalement située, elle est desservie par la ligne 1 du tramway, permettant un accès rapide à la Place Masséna, au Vieux Nice et à la Promenade des Anglais. Profitez du célèbre marché à ciel ouvert de la Libération et de toutes les commodités à proximité.

Ne manquez pas cette opportunité rare d'acquérir un bien d'exception dans un quartier dynamique.
Voir plus

Référence: 84828197
Barème des honoraires

Prêt immobilier

Vous souhaitez connaître votre capacité d’emprunt et trouver le meilleur crédit immobilier ?
Réaliser une simulation gratuite

Appartement à NICE
Appartement à NICE
Ce site est protégé par reCAPTCHA la Politique de confidentialité et les Conditions d’utilisation de Google s’appliquent.
Obtenir un prêt immobilier au meilleur taux ?

En poursuivant votre navigation sans modifier vos paramètres, vous acceptez l'utilisation de cookies susceptibles de réaliser des statistiques de visite. Cliquez ici pour plus d'informations