Bénéficiez des services de nos partenaires locaux soigneusement sélectionnés
pour vous accompagner dans votre parcours d'achat immobilier

Exceptionnel - 5 pieces - dernier etage solarium

— Nice 06000 —
2 515 000 €
137 m²
5 pièces
parkingbalcon/terrasseascenseuraccès handicapé

Nos partenaires locaux
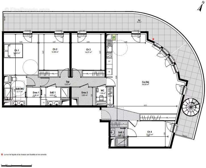
Découvrez cet appartement unique de 139 m² au 6ème étage d'une résidence élégante et intimiste au cœur du quartier de la Libération à Nice.
Ce quartier central, réputé pour son marché à ciel ouvert, est idéalement desservi par la ligne 1 du tramway, offrant un accès rapide à la Place Masséna, au Vieux Nice et à la Promenade des Anglais.

Cet appartement, bénéficiant d'une double exposition, propose un séjour/cuisine spacieux de 54 m², trois terrasses et un solarium exceptionnel de 140 m² sur le toit avec possibilité d'installer un jacuzzi. L'intérieur comprend une suite parentale avec salle d'eau et placard, trois chambres, deux dressings, une salle de bains, une salle d'eau avec WC et des WC séparés. Les finitions sont haut de gamme et de nombreux placards offrent des solutions de rangement optimales.

La résidence se distingue par son architecture soignée et ses prestations de qualité supérieure.
Possibilité d'acquérir deux box en sous-sol en supplément du prix, assurant sécurité et facilité de stationnement. Ne manquez pas cette occasion unique de vivre dans un cadre de vie élégant et confortable, au sein d'un quartier dynamique et emblématique de Nice.

Pour plus d'informations ou pour organiser une visite, n'hésitez pas à nous contacter.
Voir plus

Référence: 84828445
Barème des honoraires

Prêt immobilier

Vous souhaitez connaître votre capacité d’emprunt et trouver le meilleur crédit immobilier ?
Réaliser une simulation gratuite

Appartement à NICE
Appartement à NICE
Appartement à NICE
Appartement à NICE
Appartement à NICE
Ce site est protégé par reCAPTCHA la Politique de confidentialité et les Conditions d’utilisation de Google s’appliquent.
Obtenir un prêt immobilier au meilleur taux ?

En poursuivant votre navigation sans modifier vos paramètres, vous acceptez l'utilisation de cookies susceptibles de réaliser des statistiques de visite. Cliquez ici pour plus d'informations