Grand local nice riquier

— Nice 06300 —
730 000 €
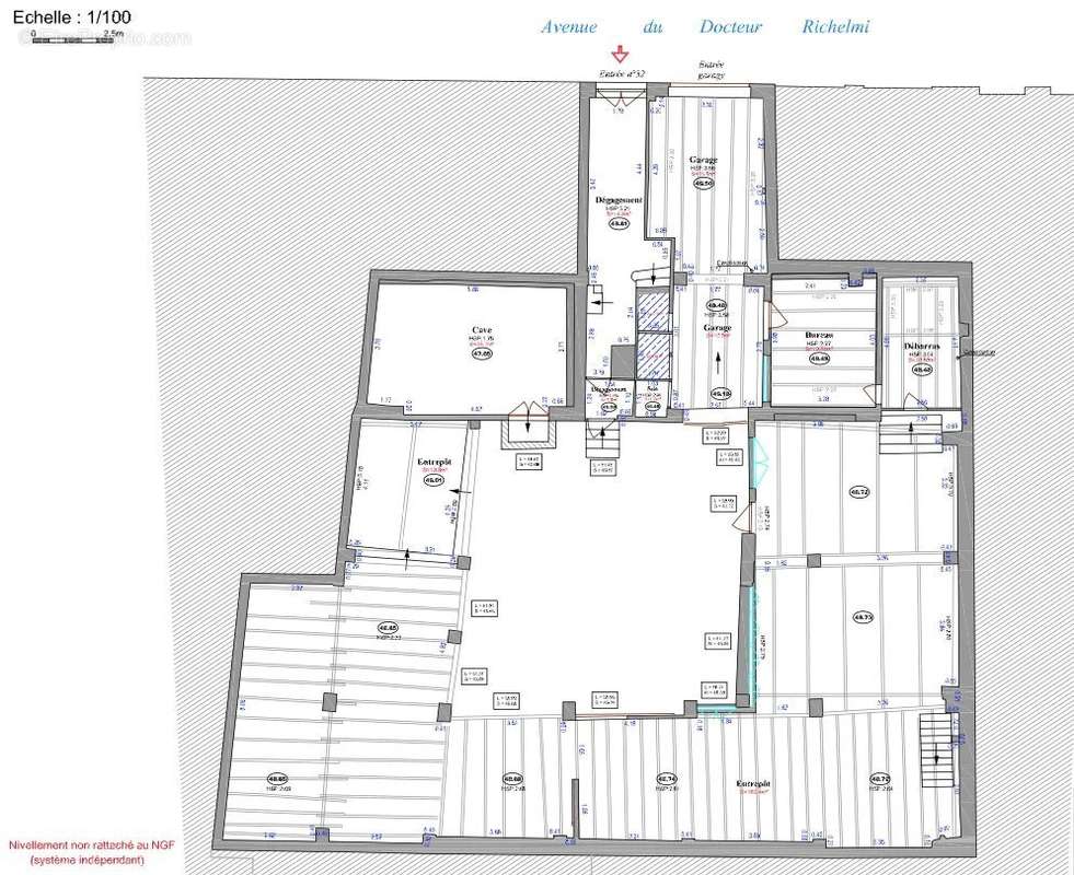
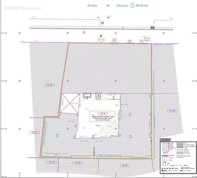
330 m²

Nice Riquier,

RARE !

Entrepot de 330 m2 en plein coeur de Ville. Ancienne tonnellerie à rénover avec grand jardin privatif et cours intérieur, le bien bénéficie également d'un accès direct par la rue.

Beaucoup de potentiel et de possibilité (créations d'appartements, coliving, artisans, etc..)

Dossier complémentaire sur demande

Référence: 84841337

Prêt immobilier

Vous souhaitez connaître votre capacité d’emprunt et trouver le meilleur crédit immobilier ?
Réaliser une simulation gratuite

Commerce à NICE
Commerce à NICE
Commerce à NICE
Commerce à NICE
Commerce à NICE
Commerce à NICE
Ce site est protégé par reCAPTCHA la Politique de confidentialité et les Conditions d’utilisation de Google s’appliquent.
Obtenir un prêt immobilier au meilleur taux ?

En poursuivant votre navigation sans modifier vos paramètres, vous acceptez l'utilisation de cookies susceptibles de réaliser des statistiques de visite. Cliquez ici pour plus d'informations