Bénéficiez des services de nos partenaires locaux soigneusement sélectionnés
pour vous accompagner dans votre parcours d'achat immobilier

Terrain 2 300 m2 + permis accepté pour 7 maisons

— Belin-Beliet 33830 —
450 000 €
2 300 m²
jardin

Nos partenaires locaux
BELIN-BELIET Centre - Libre de constructeur.
Une parcelle de terrain à bâtir d'une superficie d'environ 2 300 m2.
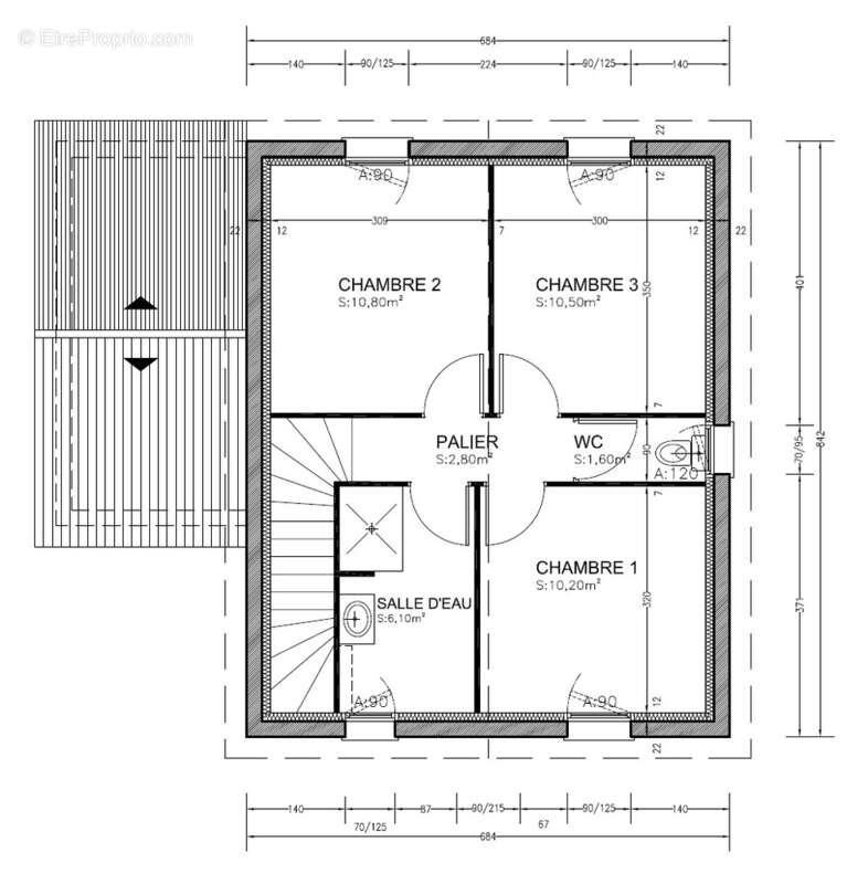
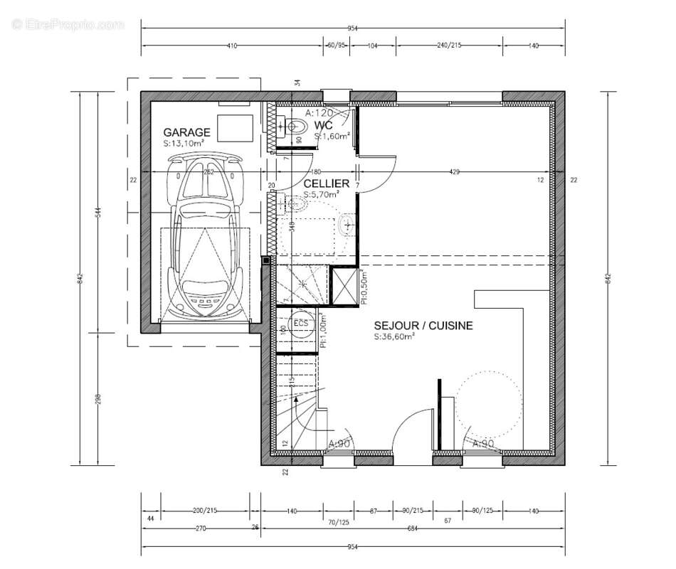
Un Permis de construire 7 maisons à étage d'environ 85 m2 et mitoyennes par un garage d'environ 13 m2 a été accepté par la Mairie.
Ce terrain est vendu Non Viabilisé. Les réseaux passent en bordure de voie.
Pour tout renseignement complémentaire, n'hésitez pas à nous contacter.

Honoraires à la charge du vendeur.
Barème des honoraires

Prêt immobilier

Vous souhaitez connaître votre capacité d’emprunt et trouver le meilleur crédit immobilier ?
Réaliser une simulation gratuite

Terrain à BELIN-BELIET
Terrain à BELIN-BELIET
Terrain à BELIN-BELIET
Terrain à BELIN-BELIET
Terrain à BELIN-BELIET
Ce site est protégé par reCAPTCHA la Politique de confidentialité et les Conditions d’utilisation de Google s’appliquent.
Obtenir un prêt immobilier au meilleur taux ?

En poursuivant votre navigation sans modifier vos paramètres, vous acceptez l'utilisation de cookies susceptibles de réaliser des statistiques de visite. Cliquez ici pour plus d'informations