Villa t5 avec garage

— L'isle-En-Dodon 31230 —
241 000 €
124 m² / 1 200 m²
5 pièces
parkingbalcon/terrassejardin

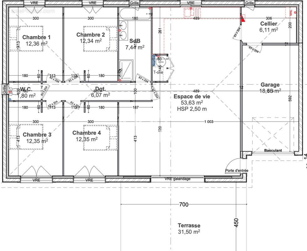
L'Isle-en-dodon maison 5 pièces de 124,45m2 avec garage.
A la recherche d'une maison neuve, sans avoir à vous préoccuper des travaux de construction ? Ne cherchez plus ! J'ai le plaisir de vous présenter cette maison contemporaine avec des prestations de qualité située à L'Isle-en-dodon.
Cette maison contemporaine 5 pièces de 124 m2 habitables, dispose de frais de notaire réduits, ainsi que d'une garantie dommage ouvrage. Elle est composée d'une grande pièce de vie de 53,63 m2, d'une cuisine aménagée ainsi que de 4 belles chambres, une salle de bains avec douche, un toilette suspendu et un garage de 18.65 m2 attenant à la maison et communiquant par le cellier. Les plus : Chauffage thermodynamique Aqua Air, Carrelage 1x1m, Menuiserie Galandage....Vous profiterez d'une belle terrasse de 31.50m2 sur un terrain cloturé d'environ 1200m2. Elle vous offrira un cadre de vie agréable et paisible, tout en étant à proximité des commodités. Ne manquez pas cette occasion unique d'acquérir une maison neuve, sans avoir à vous soucier des travaux de construction. La maison peut-être vendue hors d'air hors d'eau me contacter pour le prix. Honoraires charge vendeur,
Si ce bien vous intéresse, n'hésitez pas à me contacter ! Myriam Sarrazin ([Coordonnées masquées]), Agent commercial (EI) immatriculée au RSAC 508 198 223, Toulouse, Réseau immobilier régional, IMMOJOY. Les informations sur les risques auxquels ce bien est exposé sont disponibles sur le site Géorisques : www.georisques.gouv.fr


Cette annonce vous est proposée par Mme. Myriam SARRAZIN - EI - NoRSAC: 508 198 223, Enregistré à Chambre de commerce et de l'industrie de TOULOUSE
Voir plus

Référence: 3251
Honoraires à la charge du vendeur.
Barème des honoraires

Prêt immobilier

Vous souhaitez connaître votre capacité d’emprunt et trouver le meilleur crédit immobilier ?
Réaliser une simulation gratuite

Maison à L'ISLE-EN-DODON
Maison à L'ISLE-EN-DODON
Maison à L'ISLE-EN-DODON
Maison à L'ISLE-EN-DODON
Maison à L'ISLE-EN-DODON
Maison à L'ISLE-EN-DODON
Maison à L'ISLE-EN-DODON
Ce site est protégé par reCAPTCHA la Politique de confidentialité et les Conditions d’utilisation de Google s’appliquent.
Obtenir un prêt immobilier au meilleur taux ?

En poursuivant votre navigation sans modifier vos paramètres, vous acceptez l'utilisation de cookies susceptibles de réaliser des statistiques de visite. Cliquez ici pour plus d'informations