Bénéficiez des services de nos partenaires locaux soigneusement sélectionnés
pour vous accompagner dans votre parcours d'achat immobilier

Commerce 303m² à marseille-8e

— Marseille-8e 13008 —
650 000 €
303 m²

Nos partenaires locaux
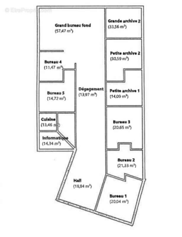
En plein cœur du quartier de Bonneveine dans un environnement d'entreprises et à proximité immédiate du centre commercial. Un ensemble immobilier de standing semi-récent à usage de bureaux et de commerces en pied d'immeuble. Cette surface, d'environ 303m² accessible par un ascenseur PMR au 2ème étage, développe un grand plateau lumineux et traversant composé d'un accueil, d'un grand couloir distribuant 7 bureaux aménagés de placards, prises RJ45 , 1 cuisine, 1 pièce technique avec baie de brassage et une grande salle de réunion de 44m², climatisation réversible collective et 3 sanitaires sur les parties communes dont un en PMR et 5 places de parking et un box en sous-sol en supplément du Prix de vente. L'ensemble est en parfait état d'usage.Honoraires vendeur en supplément du Prix de vente.

Desserte en transports :
Bus 45 et 23
Métro ROND POINT DU PRADO à 1,9 km
Voir plus

Référence: 13_000758
Honoraires à la charge du vendeur.

Prêt immobilier

Vous souhaitez connaître votre capacité d’emprunt et trouver le meilleur crédit immobilier ?
Réaliser une simulation gratuite

Commerce à MARSEILLE-8E
Commerce à MARSEILLE-8E
Commerce à MARSEILLE-8E
Commerce à MARSEILLE-8E
Commerce à MARSEILLE-8E
Commerce à MARSEILLE-8E
Commerce à MARSEILLE-8E
Commerce à MARSEILLE-8E
Ce site est protégé par reCAPTCHA la Politique de confidentialité et les Conditions d’utilisation de Google s’appliquent.
Obtenir un prêt immobilier au meilleur taux ?

En poursuivant votre navigation sans modifier vos paramètres, vous acceptez l'utilisation de cookies susceptibles de réaliser des statistiques de visite. Cliquez ici pour plus d'informations