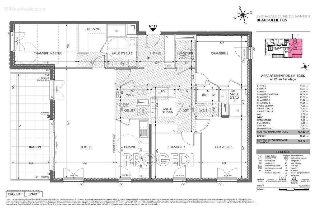
Appartement 131m² à beausoleil

— Beausoleil 06240 —
2 086 000 €
131 m²
5 pièces
parkingbalcon/terrasseascenseur

Entourée de végétation et le Parc Grima comme voisin, l'adresse bénéficie d'un emplacement stratégique : proche du centre-ville de Beausoleil, à quelques minutes de Monaco, à 30 minutes en voiture de l'aéroport de Nice. Au coeur d'un jardin arboré, cette réalisation à l'architecture sobre fait la part belle aux larges ouvertures, une promesse de lumière et de vues dégagées jusqu'à la mer. Un espace SPA et bien-être sera accessible aux résidents.

Points forts de la résidence :
Emplacement stratégique : Proche du centre-ville de Beausoleil et de Monaco.
Cadre exceptionnel : Vue dégagée jusqu'à la mer, entourée de végétation et du Parc Grima.

Intérieurs élégants :
Parquet contrecollé dans les séjours et chambres.
Carrelage au sol et faïence toute hauteur dans les salles de bains.
Climatisation réversible gainable.
Meuble vasque surmonté d'un miroir éclairé, sèche-serviette et pare-douche.
Placards aménagés.
Menuiseries extérieures en aluminium laqué.
Volets roulants motorisés.
Garde-corps ferronnés ou vitrés selon l'orientation.
Pré-équipement domotique

Équipements pratiques :
Hall et paliers décorés par un architecte d'intérieur.
Parkings sécurisés en toiture.
Local à vélos.
Possibilité de cave en rez-de-jardin.

Espaces bien-être : Espace fitness, Spa, Hammam, Sauna.

Livraison 1er trimestre 2027 - Frais de notaire réduits
Voir plus

Référence: 722V238A
Bien en copropriété. Nombre de lots : 7.
Honoraires à la charge du vendeur.

Prêt immobilier

Vous souhaitez connaître votre capacité d’emprunt et trouver le meilleur crédit immobilier ?
Réaliser une simulation gratuite

Appartement à BEAUSOLEIL
Appartement à BEAUSOLEIL
Appartement à BEAUSOLEIL
Appartement à BEAUSOLEIL
Appartement à BEAUSOLEIL
Appartement à BEAUSOLEIL
Appartement à BEAUSOLEIL
Appartement à BEAUSOLEIL
Ce site est protégé par reCAPTCHA la Politique de confidentialité et les Conditions d’utilisation de Google s’appliquent.
Obtenir un prêt immobilier au meilleur taux ?

En poursuivant votre navigation sans modifier vos paramètres, vous acceptez l'utilisation de cookies susceptibles de réaliser des statistiques de visite. Cliquez ici pour plus d'informations