Bénéficiez des services de nos partenaires locaux soigneusement sélectionnés
pour vous accompagner dans votre parcours d'achat immobilier

Lieux uniques ® x propriétés privées propose appartement de 81.65 m² - dinard a proximite des commer

— Dinard 35800 —
498 000 €
82 m²
4 pièces
parkingbalcon/terrasseascenseur

Nos partenaires locaux
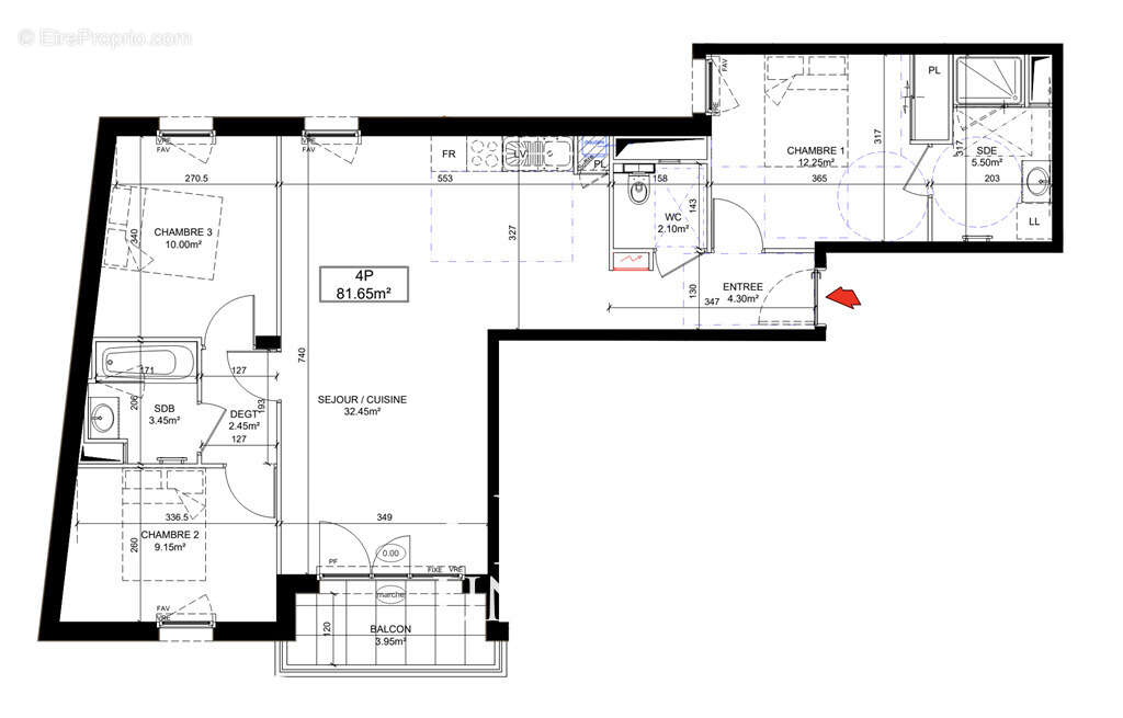
LIEUX UNIQUES ® Rennes-Dinard-Saint-Malo x PROPRIÉTÉS PRIVÉES. Contacter Cédric LARZUL de LIEUX UNIQUES ® Rennes-Dinard-Saint-Malo pour ce très bel appartement de 81.65 m² (Loi Carrez) (au 1er étage d'une petit résidence qui comporte seulement 11 appartements), situé dans l'hyper-centre de Dinard et à proximité des commerces, des services et des plages du Prieuré, de l'Écluse et Saint-Énogat.
Cet appartement comprend : une entrée (de 4.30 m²), un salon-séjour-cuisine (de 32.45 m²), une chambre 1 (de 12.25 m²), une chambre 2 (de 9.15 m²), une chambre 3 (de 10.00 m²), une salle de bains (de 3.45 m²), une salle d'eau (de 5.50 m²), un WC (de 2.10 m²), un dégagement (2.45 m²) et un balcon (de 3.95 m²).
MON AVIS : un appartement dans un emplacement de premier choix au sein d'une station balnéaire réputée comme l'une des plus prestigieuses de France. Cet immeuble de 4 étages est couronnés d’un attique subtilement habillé de zinc prépatiné. L'appartement est doté de prestations et d'équipements pour votre bien-être et votre confort : production d’eau chaude par chaudière individuelle gaz à condensation, radiateurs métalliques avec robinets thermostatiques, carrelage dans le séjour et la cuisine, parquet dans les chambres, salle de bains avec faïence toute hauteur et sèche serviettes, WC suspendu, volets roulants à commande électrique dans les pièces principales, pare-vues en métal laqué gris anthracite et verre dépoli et serrure de sécurité 3 points de fermeture
Le toit-terrasse végétalisé permet de bénéficier d’une bonne isolation thermique été comme hiver. Ce choix de revêtement végétal contribue au biotope de ce très bel ensemble urbain.
LIEUX UNIQUES ® Rennes-Dinard x PROPRIÉTÉS PRIVÉES - [Coordonnées masquées] - plus d’informations sur 3w lieuxuniques com. Le prix de vente est de 518.000 euros honoraires d’agence inclus (honoraires d’agence à la charge du vendeur). Immobilier de Luxe LIEUX UNIQUES ® - Immobilier de Prestige LIEUX UNIQUES ® - Immobilier de Charme LIEUX UNIQUES ®. RCS BLOIS : 790 024 848. Lot : 1103.
Voir plus

Référence: 1445

Prêt immobilier

Vous souhaitez connaître votre capacité d’emprunt et trouver le meilleur crédit immobilier ?
Réaliser une simulation gratuite

Appartement à DINARD
Appartement à DINARD
Appartement à DINARD
Appartement à DINARD
Appartement à DINARD
Ce site est protégé par reCAPTCHA la Politique de confidentialité et les Conditions d’utilisation de Google s’appliquent.
Obtenir un prêt immobilier au meilleur taux ?

En poursuivant votre navigation sans modifier vos paramètres, vous acceptez l'utilisation de cookies susceptibles de réaliser des statistiques de visite. Cliquez ici pour plus d'informations