Lieux uniques ® propose grand appartement de rdc de 88.41 m² avec son jardin 109.19 m² tours nord

— Tours 37100 —
267 000 €
88 m² / 109 m²
4 pièces
parkingbalcon/terrassejardin

LIEUX UNIQUES ® Tours-Orléans-Blois x PROPRIÉTÉS PRIVÉES. Contacter Cédric LARZUL au [Coordonnées masquées] pour ce grand appartement de 88.41 m² avec son jardin de 109.19 m², à proximité de l'ensemble des commerces, des services, de l'autoroute A10 et situé sur Tours Nord.
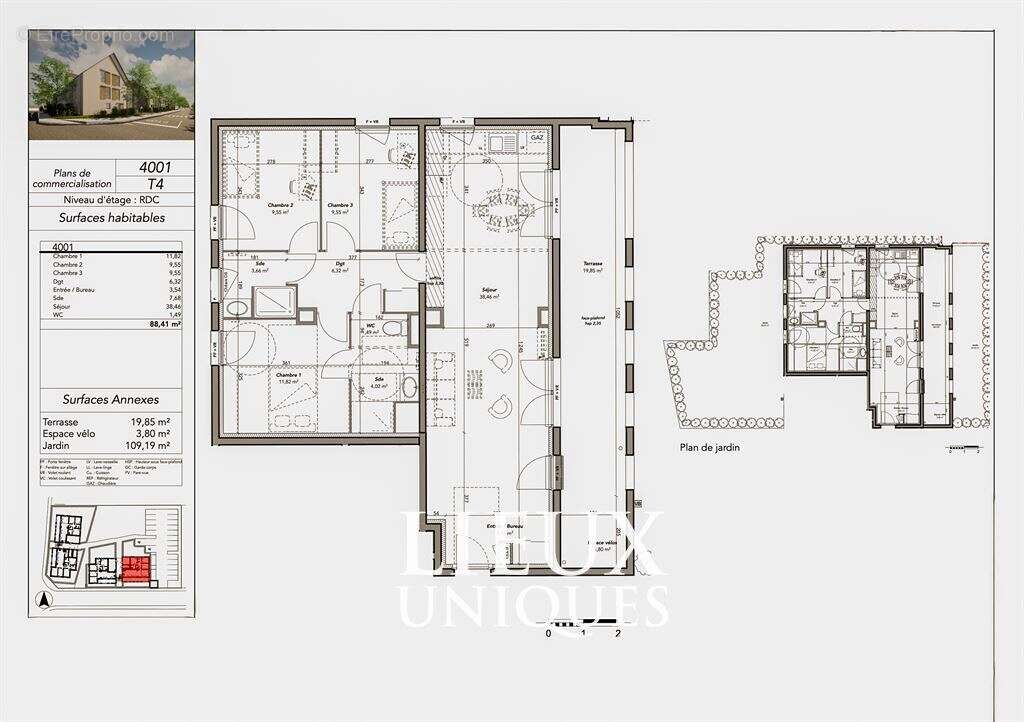
Ce grand appartement de RDC comprend : une entrée (de 3.54 m²), une salle d'eau (de 7.68 m²), un WC (de 1.49m²), un salon-séjour-cuisine (de 38.46 m²), un dégagement (de 6.32 m²), une chambre 1 (de 11.82 m²), une chambre 2 (de 9.55 m²), une chambre 3 (de 9.55 m²), une terrasse (de 19.85 m²), un espace vélos (de 3.80 m²) et un grand jardin (de 109.19 m²).
MON AVIS : pour le coup c'est un peu UNIQUE, un grand appartement de RDC, un grand jardin et un garage à vélo, idéalement situé à proximité de tous les commerces, des services, des hôpitaux et de l'autoroute. Chauffage et eau chaude au gaz. Huisseries PVC. Volets roulants. L'appartement est orienté Sud, Ouest, Est. Le jardin est constitué de Haies végétales et clôtures grillagées simple torsion plastifiées 120cm de hauteur autour des jardins privatifs. 1 Parking extérieur.
MON CONSEIL : rare sur le secteur avec un tel jardin !
LIEUX UNIQUES ® Rennes-Dinard - [Coordonnées masquées] - plus d’informations sur 3w lieuxuniques com. Le prix de vente est de 267.000 euros honoraires d’agence inclus (honoraires d’agence à la charge du vendeur). Immobilier de Luxe LIEUX UNIQUES ® - Immobilier de Prestige LIEUX UNIQUES ® - Immobilier de Charme LIEUX UNIQUES ®. RCS BLOIS : 790 024 848. LOT : 4001.
Voir plus

Référence: 4001

Prêt immobilier

Vous souhaitez connaître votre capacité d’emprunt et trouver le meilleur crédit immobilier ?
Réaliser une simulation gratuite

Appartement à TOURS
Appartement à TOURS
Appartement à TOURS
Appartement à TOURS
Ce site est protégé par reCAPTCHA la Politique de confidentialité et les Conditions d’utilisation de Google s’appliquent.
Obtenir un prêt immobilier au meilleur taux ?

En poursuivant votre navigation sans modifier vos paramètres, vous acceptez l'utilisation de cookies susceptibles de réaliser des statistiques de visite. Cliquez ici pour plus d'informations