Maison 3 pièce(s) de 73m2 à folelli

— Penta-Di-Casinca 20213 —
291 500 €
73 m²
3 pièces

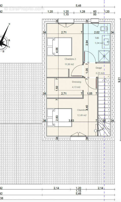
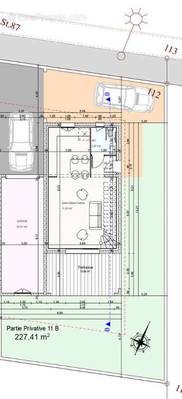
Idéalement située entre le coeur de Folelli et la plage de San Pellegrino, nous vous proposons une maison mitoyenne de type 3 en R+1 en projet de construction de 73m2 dans la nouvelle résidence, LES RÉSIDENCES D'ALISU, comprenant 20 logements. Elle est composée en RDC de : - 1 grand salon/séjour/cuisine de 31.2m2 - WC séparé En R+1 de : - 2 chambres dont 1 avec dressing - 1 salle d'eau En extérieur, vous y trouverez un espace jardin privatif + parkings de 133.5m2, une terrasse exposée plein Sud de 16m2, un garage/remise de 25m2 (possibilité de transformer en chambre supplémentaire) avec 2 places de stationnement extérieur. Située dans un quartier calme à moins de 5min en voiture de toutes commodités et plages. Ce programme en Vente Achevée bénéficie des frais de notaire réduit. Livraison prévue 2ème semestre 2023. Fibre optique et couverture réseau 4G. Climatisation dans toutes les pièces. Volets roulants. Façade projection lisse et couverture tuiles noires. Menuiseries gris anthracite en aluminium. N'hésitez pas à nous contacter pour tous renseignements complémentaires, grille de prix et plans.
Voir plus

Honoraires à la charge du vendeur.

Prêt immobilier

Vous souhaitez connaître votre capacité d’emprunt et trouver le meilleur crédit immobilier ?
Réaliser une simulation gratuite

Maison à PENTA-DI-CASINCA
Maison à PENTA-DI-CASINCA
Maison à PENTA-DI-CASINCA
Maison à PENTA-DI-CASINCA
Maison à PENTA-DI-CASINCA
Maison à PENTA-DI-CASINCA
Ce site est protégé par reCAPTCHA la Politique de confidentialité et les Conditions d’utilisation de Google s’appliquent.
Obtenir un prêt immobilier au meilleur taux ?

En poursuivant votre navigation sans modifier vos paramètres, vous acceptez l'utilisation de cookies susceptibles de réaliser des statistiques de visite. Cliquez ici pour plus d'informations