Bénéficiez des services de nos partenaires locaux soigneusement sélectionnés
pour vous accompagner dans votre parcours d'achat immobilier

Maison neuve avec vue

— Apt 84400 —
322 000 €
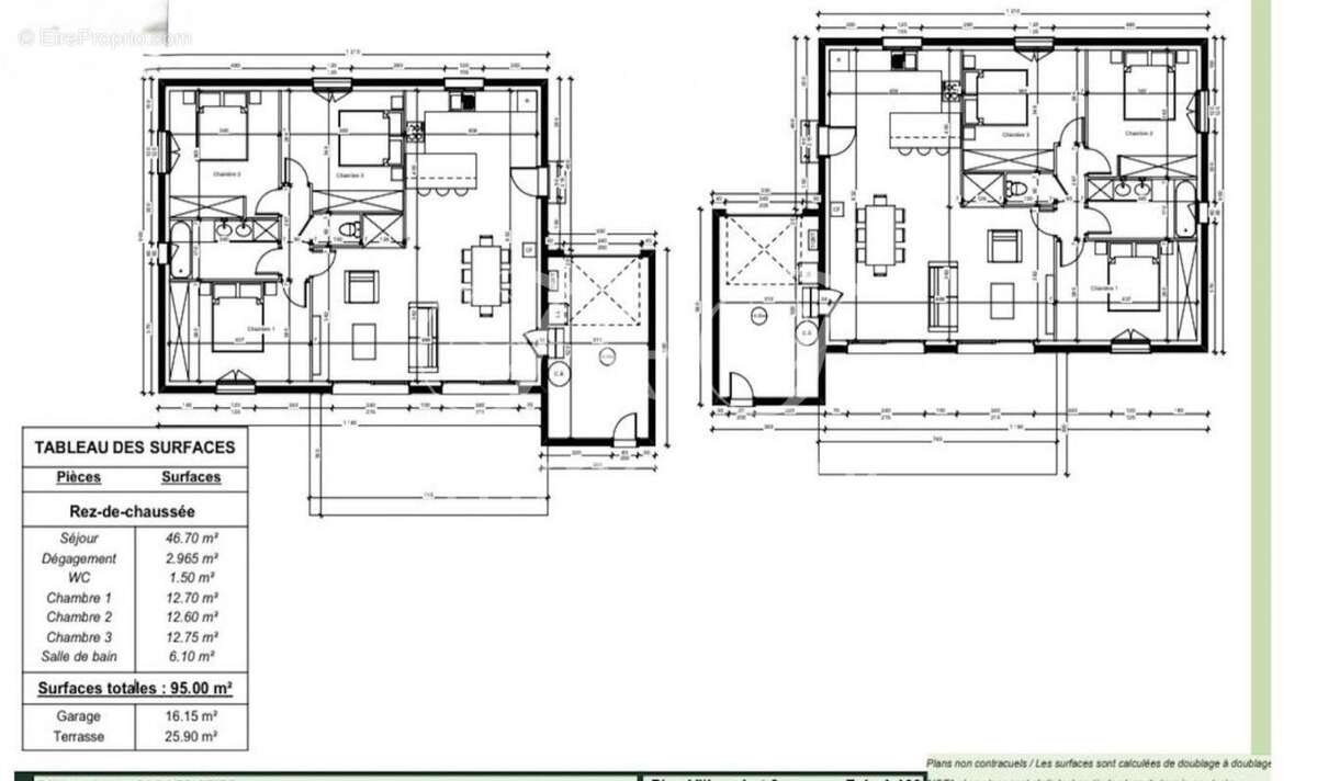
95 m²

Nos partenaires locaux
Vous souhaitez acquérir une villa neuve avec un DPE parfait, et des matériaux de qualité c'est la maison qu'il vous faut.
Avec une superficie d'environ 95 m², elle se compose d'une cuisine ouverte sur la pièce de vie, de 3 chambres, d'une salle de bain, d'un WC séparé.
L'extérieur vous offre une belle terrasse d'environ 26m² et la possibilité de créer une superbe piscine sur une parcelle d'environ 600 m².
À voir absolument!

Référence: LUB-001191

Prêt immobilier

Vous souhaitez connaître votre capacité d’emprunt et trouver le meilleur crédit immobilier ?
Réaliser une simulation gratuite

Maison à APT
Maison à APT
Maison à APT
Maison à APT
Maison à APT
Maison à APT
Maison à APT
Maison à APT
Maison à APT
Ce site est protégé par reCAPTCHA la Politique de confidentialité et les Conditions d’utilisation de Google s’appliquent.
Obtenir un prêt immobilier au meilleur taux ?

En poursuivant votre navigation sans modifier vos paramètres, vous acceptez l'utilisation de cookies susceptibles de réaliser des statistiques de visite. Cliquez ici pour plus d'informations