Bénéficiez des services de nos partenaires locaux soigneusement sélectionnés
pour vous accompagner dans votre parcours d'achat immobilier

Maison 79m² à gap

— Gap 05000 —
289 700 €
79 m² / 106 m²
4 pièces
parkingjardin

Nos partenaires locaux
Vivre à Gap, au pied des montagnes, dans un quartier qui respire la sérénité.
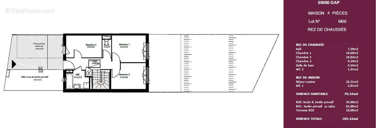
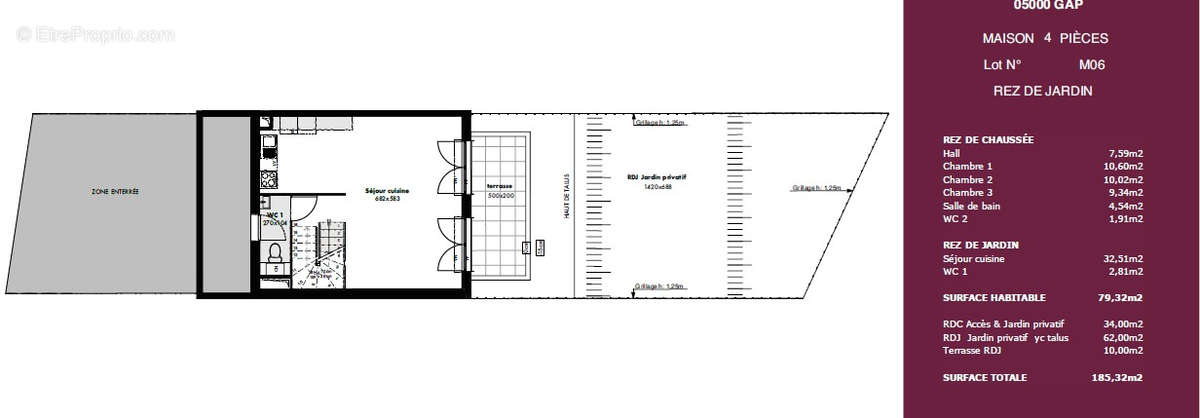
Nous vous proposons des maisons T4 avec séjour cuisine, 3 chambres, salle de bains, 2 WC. Une terrasse, un jardin et un garage ou place de parking. Le chauffage est assuré par une chaudière gaz.
Au pied du programme 2 lignes de bus gratuites desservent Gap.
Livraison fin 2025, RT 2012 , maisons T4 de 79.3 m² (289 700€) à 97.5 m² (360 800€). Pour plus de renseignements n'hésitez pas à nous contacter [Coordonnées masquées], ERA Gap 21 Avenue J. Jaurès.
Voir plus

Référence: 3779

Prêt immobilier

Vous souhaitez connaître votre capacité d’emprunt et trouver le meilleur crédit immobilier ?
Réaliser une simulation gratuite

Maison à GAP
Maison à GAP
Maison à GAP
Maison à GAP
Ce site est protégé par reCAPTCHA la Politique de confidentialité et les Conditions d’utilisation de Google s’appliquent.
Obtenir un prêt immobilier au meilleur taux ?

En poursuivant votre navigation sans modifier vos paramètres, vous acceptez l'utilisation de cookies susceptibles de réaliser des statistiques de visite. Cliquez ici pour plus d'informations