Appartement 39m² à cucq

— Cucq 62780 —
206 000 €
40 m²
2 pièces

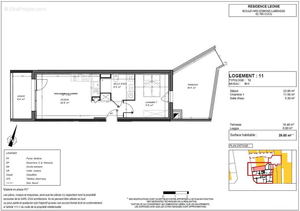
Appartement de type 2 à STELLA-PLAGE dans une petite résidence proche de la mer et de tous les commerces .
D'une surface habitable de 39.60 M 2 avec en supplément loggia de 6 M 2 et terrasse de 16.40 M 2, il sera bien agréable de venir y poser ses valises.
Grand local à vélos, possibilité d'acquérir place de parking sécurisé en supplément.





Honoraires à la charge du vendeur. Dans une copropriété de 19 lots. Aucune procédure n'est en cours. Non soumis au DPE. Les informations sur les risques auxquels ce bien est exposé sont disponibles sur le site Géorisques : georisques.gouv.fr.

Votre conseiller Villa le Touquet : Caroline Pamelart
Agent commercial (Entreprise individuelle)
Voir plus

Référence: VA21527-GF
Bien en copropriété. Nombre de lots : 19.
Honoraires à la charge du vendeur.
Barème des honoraires

Prêt immobilier

Vous souhaitez connaître votre capacité d’emprunt et trouver le meilleur crédit immobilier ?
Réaliser une simulation gratuite

Appartement à CUCQ
Appartement à CUCQ
Appartement à CUCQ
Ce site est protégé par reCAPTCHA la Politique de confidentialité et les Conditions d’utilisation de Google s’appliquent.
Obtenir un prêt immobilier au meilleur taux ?

En poursuivant votre navigation sans modifier vos paramètres, vous acceptez l'utilisation de cookies susceptibles de réaliser des statistiques de visite. Cliquez ici pour plus d'informations