Bénéficiez des services de nos partenaires locaux soigneusement sélectionnés
pour vous accompagner dans votre parcours d'achat immobilier

Appartement pornichet 2 pièce(s) 48 m2 nue propriété 15 ans en vefa

— Pornichet 44380 —
234 000 €
48 m²
2 pièces
parkingascenseur

Nos partenaires locaux
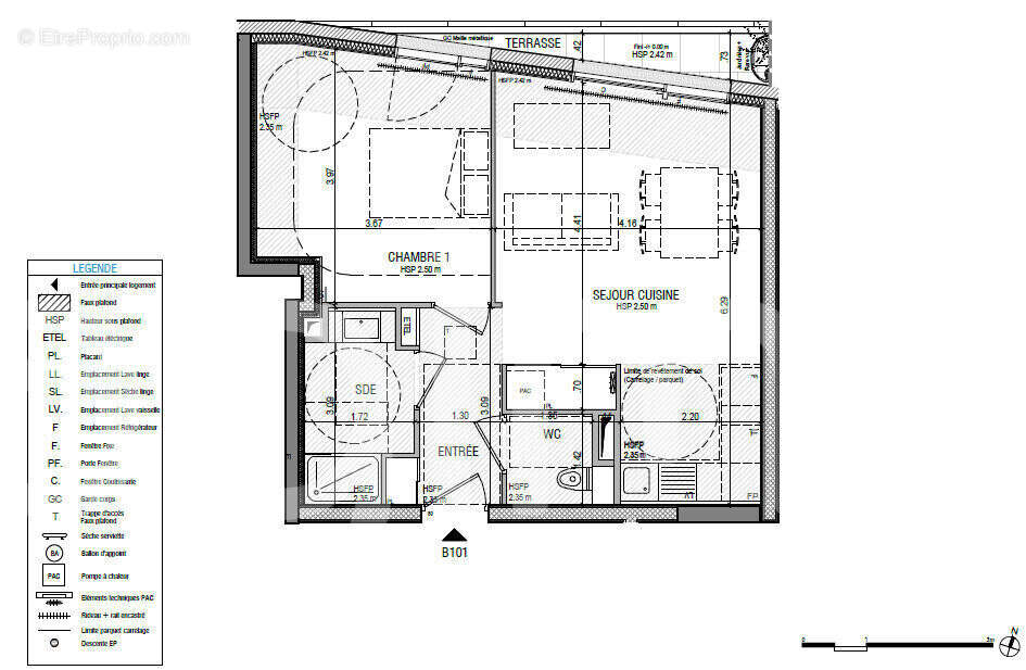
VIAGIMMO LA BAULE vous propose la Nue-Propriété d'un appartement 2 pièces de 48 m² en VEFA (achat d'un appartement neuf) dans le cadre d'un dispositif d'usufruit locatif social d'une durée de 15 ans. Dans ce programme neuf, en bord de mer, à proximité du port et des commerces, au sein d'une élégante résidence composée de 2 bâtiments. Architecture moderne. Exigence des matériaux. Appartement lumineux, ouvert sur l'extérieur. Place de stationnement en sous-sol sécurisé. Chaque appartement bénéficie d'un casier de rangement dans le hall permettant d'accueillir les parasols, transats et autres accessoires du bord de mer. Vous achetez la nue-propriété d'un bien immobilier de qualité et avec les garanties de construction associées avec une décote sur le prix d'acquisition de 35 %, du fait de l'occupation réservée par usufruit de 15 ans. L'usufruit est acquis par un bailleur professionnel qui assure la gestion locative et prend en charge l'entretien du bien, les travaux et les taxes. Au terme de l'usufruit temporaire, l'investisseur peut prendre la possession de son bien. Cette vente en Nue-propriété s'effectue sur le principe de démembrement temporaire de propriété et offre de nombreux avantages à l'acquéreur : -Achat à prix réduit par rapport à sa valeur en pleine propriété, (65 % de la valeur vénale) -Aucune contrainte de gestion : aucune dépense imprévue ni aucun risque locatif. L'obligation d'entretien du bien est à la charge de l'usufruitier, qui a également l'obligation de remettre en l'état le bien à l'extinction de l'usufruit ; vous n'avez aucune charge de copropriété à régler pendant les 15 ans -Avantage fiscal pour l'investisseur : pas de perception de revenus fonciers venant alourdir l'impôt sur le revenu supplémentaire, ni de prélèvements sociaux, ni de taxes foncières) -Réduction de la base imposable à l'IFI - L'assiette taxable est calculée seulement sur la base de la nue-propriété -Déductibilité des intérêts d'emprunt possible sur les autres revenus fonciers de l'acquéreur si investissement à crédit -Extinction de l'usufruit et reconstitution de la pleine propriété sans frais au terme des 15 ans -Frais d'acte d'acquisition réduits COMPTANT : 234 000 EUROS (HAI ) VALEUR DU BIEN en pleine propriété : 360 000 EUROS. Honoraires agence : charge vendeur Frais d'acte notarié estimés : 7 200 euros (frais réduits) REF 23NP020 - Plus de photos sur demande. CONTACT VIAGIMMO 198 Av. de Lattre de Tassigny 44500 LA BAULE [Coordonnées masquées] - [Coordonnées masquées] Copropriété de 65 lots - dont 23 lots habitation.(Pas de procédure en cours).
Voir plus

Référence: 23NP020
Bien en copropriété. Nombre de lots : 65.
Honoraires à la charge du vendeur.
DPE
A
B
C
D
E
F
G
GES
A
B
C
D
E
F
G

Prêt immobilier

Vous souhaitez connaître votre capacité d’emprunt et trouver le meilleur crédit immobilier ?
Réaliser une simulation gratuite

Appartement à PORNICHET
Appartement à PORNICHET
Appartement à PORNICHET
Appartement à PORNICHET
Ce site est protégé par reCAPTCHA la Politique de confidentialité et les Conditions d’utilisation de Google s’appliquent.
Obtenir un prêt immobilier au meilleur taux ?

En poursuivant votre navigation sans modifier vos paramètres, vous acceptez l'utilisation de cookies susceptibles de réaliser des statistiques de visite. Cliquez ici pour plus d'informations