Appartement 139m² à saint-laurent-du-var

— Saint-Laurent-Du-Var 06700 —
1 290 000 €
139 m²
4 pièces
parkingbalcon/terrasseascenseur

Iad France - Guillaume Sueur ([Coordonnées masquées]) vous propose : SAINT LAURENT DU VAR - Proche plages et CAP 3000
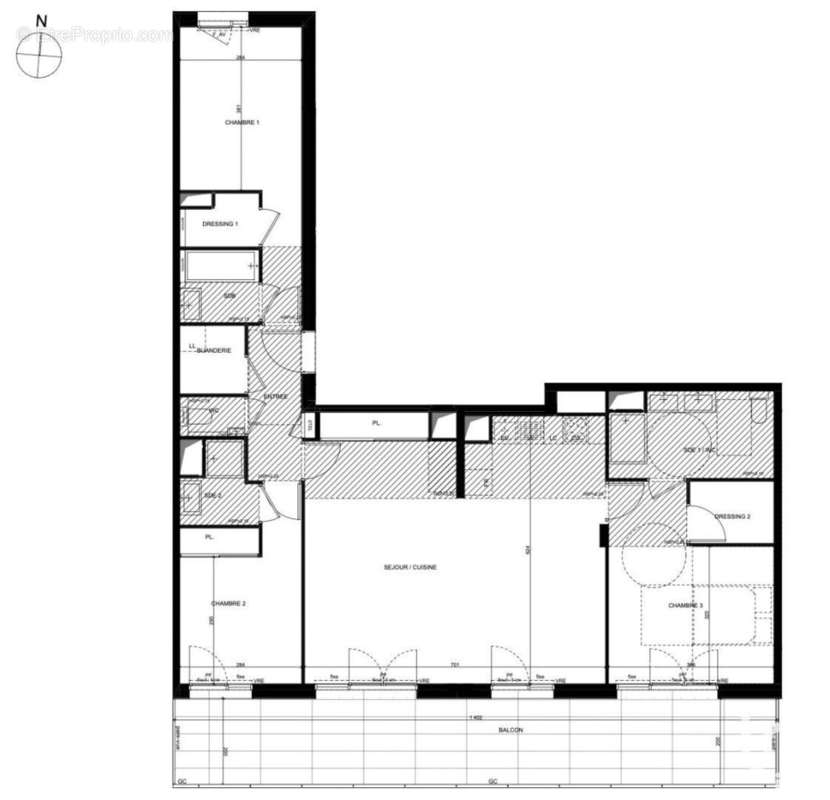
Venez découvrir cet appartement traversant de 4 pièces au dernier étage d'une résidence d'exception offrant : un séjour / cuisine de 43 m² environ, 3 chambres, une salle de bain, deux salles d'eau dont une avec WC, un WC indépendant avec lave-mains, deux dressings et une buanderie.
Deux des chambres et le séjour ouvrent sur une terrasse plein sud de 28 m² environ avec vue mer.
Trois parkings en sous-sol complètent l'offre.
Avec une consommation énergétique 15% inférieure aux plafonds de la RT2012, l'appartement dispose de prestations de grand standing : climatisation, volets roulants motorisés, salles de bain entièrement équipées, carrelage 60 x 60 cm.
Vous serez séduit par la piscine à débordement en rooftop, les jardins paysagés et les équipements contemporains (interface numérique centralisant plusieurs services comme la réception de colis ou les accès à la conciergerie en ligne).
Entre mer et ville, vous trouverez dans cette résidence, l'accord parfait entre vie balnéaire et vie active. ELIGIBLE PINEL

Honoraires d'agence à la charge du vendeur. Information d'affichage énergétique sur ce bien : DPE et GES vierges. Les informations sur les risques auxquels ce bien est exposé sont disponibles sur le site Géorisques : www.georisques.gouv.fr. La présente annonce immobilière a été rédigée sous la responsabilité éditoriale de M. Guillaume Sueur EI (ID 13733), mandataire indépendant en immobilier (sans détention de fonds), agent commercial de la SAS I@D France immatriculé au RSAC de GRASSE sous le numéro 808650865, titulaire de la carte de démarchage immobilier pour le compte de la société I@D France SAS.
Retrouvez tous nos biens sur notre site internet. www.iadfrance.fr.
Informations LOI ALUR :
Honoraires charge vendeur. (gedeon_6727_26657593)
Voir plus

Référence: 1095682-40
Honoraires à la charge du vendeur.

Prêt immobilier

Vous souhaitez connaître votre capacité d’emprunt et trouver le meilleur crédit immobilier ?
Réaliser une simulation gratuite

Photo 1 - Appartement à SAINT-LAURENT-DU-VAR
Photo 1
Photo 2 - Appartement à SAINT-LAURENT-DU-VAR
Photo 2
Photo 3 - Appartement à SAINT-LAURENT-DU-VAR
Photo 3
Photo 4 - Appartement à SAINT-LAURENT-DU-VAR
Photo 4
Photo 5 - Appartement à SAINT-LAURENT-DU-VAR
Photo 5
Photo 6 - Appartement à SAINT-LAURENT-DU-VAR
Photo 6
Ce site est protégé par reCAPTCHA la Politique de confidentialité et les Conditions d’utilisation de Google s’appliquent.
Obtenir un prêt immobilier au meilleur taux ?

En poursuivant votre navigation sans modifier vos paramètres, vous acceptez l'utilisation de cookies susceptibles de réaliser des statistiques de visite. Cliquez ici pour plus d'informations