Bénéficiez des services de nos partenaires locaux soigneusement sélectionnés
pour vous accompagner dans votre parcours d'achat immobilier

Maison en pierres l'aigle

— L'aigle 61300 —
296 000 €
146 m² / 4 687 m²
6 pièces
parkingbalcon/terrassejardin

Nos partenaires locaux
L'Etoile immobilier, vous propose de découvrir cette confortable maison restaurée, située à seulement 7 kms de L'AIGLE, ville avec tous commerces, gare SNCF et écoles.
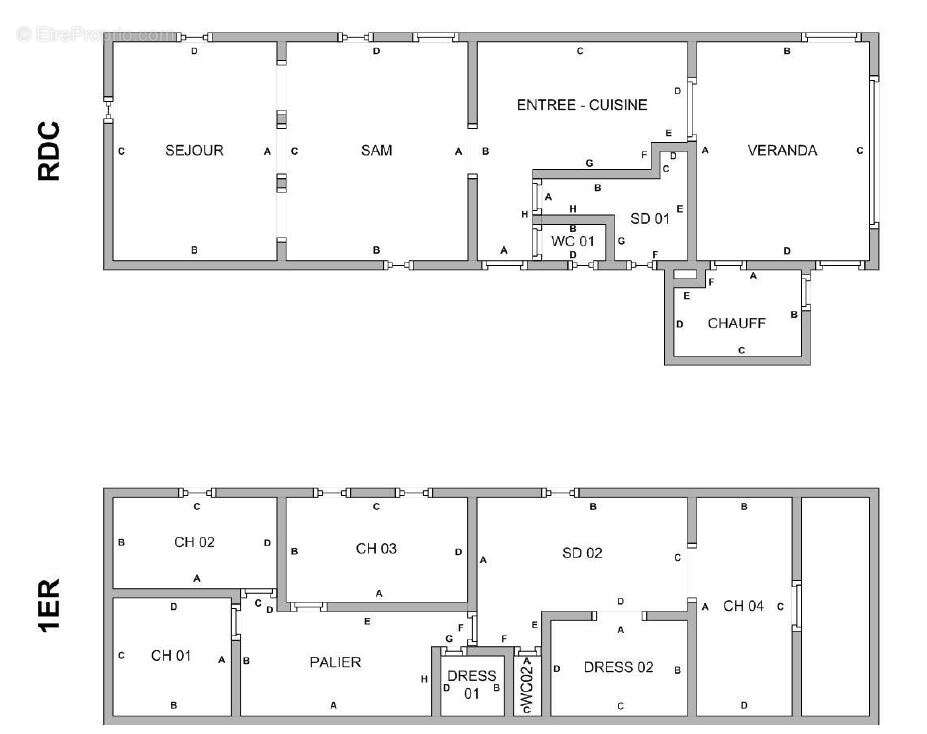
Au rez-de-chaussée : entrée ouverte sur cuisine aménagée et équipée (plaque, hotte, four, lave-vaisselle, réfrigérateur), salle d'eau, WC, salle à manger lumineuse avec vue sur la mare et pièce de séjour de 47 m2 avec cheminée ; à l'étage : palier desservant un bureau, deux chambres, un dressing, un WC et une chambre avec salle d'eau et dressing privatif.
Chauffage par pompe à chaleur AIR/EAU. Chauffe-eau thermodynamique. Assainissement par microstation.
Nombreuses dépendances : chenil, double garage, bûcher, chalet, préau, cave, garage pour camping-car et voiture avec mezzanine.
Le tout sur 4687 m2 de terrain arboré, agrémenté d'une mare.
Voir plus

Référence: 1213
Honoraires d'agence de 5.34% à la charge de l'acquéreur
Barème des honoraires
DPE
A
B
C
D
E
F
G
GES
A
B
C
D
E
F
G

Prêt immobilier

Vous souhaitez connaître votre capacité d’emprunt et trouver le meilleur crédit immobilier ?
Réaliser une simulation gratuite

Maison à L'AIGLE
Maison à L'AIGLE
Maison à L'AIGLE
Maison à L'AIGLE
Maison à L'AIGLE
Maison à L'AIGLE
Maison à L'AIGLE
Maison à L'AIGLE
Maison à L'AIGLE
Maison à L'AIGLE
Maison à L'AIGLE
Maison à L'AIGLE
Maison à L'AIGLE
Maison à L'AIGLE
Maison à L'AIGLE
Maison à L'AIGLE
Ce site est protégé par reCAPTCHA la Politique de confidentialité et les Conditions d’utilisation de Google s’appliquent.
Obtenir un prêt immobilier au meilleur taux ?

En poursuivant votre navigation sans modifier vos paramètres, vous acceptez l'utilisation de cookies susceptibles de réaliser des statistiques de visite. Cliquez ici pour plus d'informations