Bénéficiez des services de nos partenaires locaux soigneusement sélectionnés
pour vous accompagner dans votre parcours d'achat immobilier

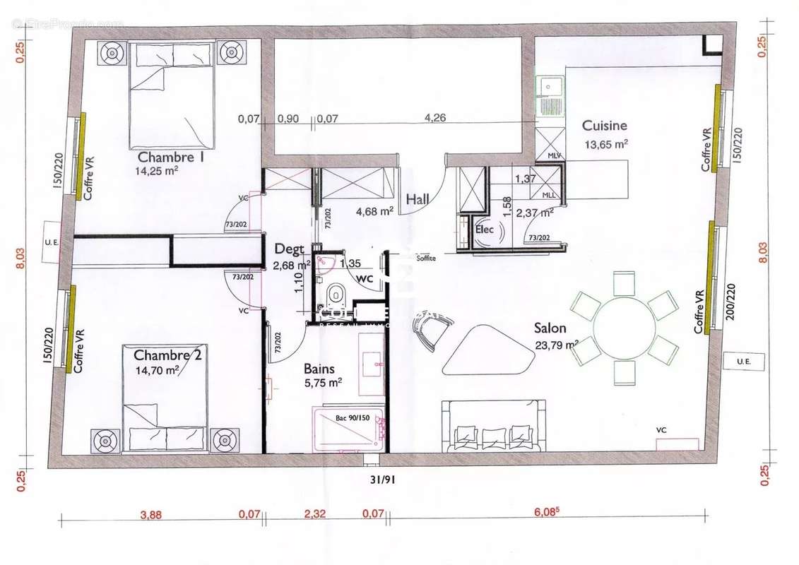
Saint-raphaël - t3 avec cave et parking fermé

— Saint-Raphael 83700 —
535 000 €
83 m²
3 pièces
parkingbalcon/terrasseascenseur

Nos partenaires locaux
En plein centre ville, nous vous proposons ce magnifique T3 avec une grande cave et parking fermé.
Situé au 2ème étage / 4 avec ascenseur, il a été entièrement rénové en 2023 avec des matériaux de qualité et se compose d'une entrée avec placards, une cuisine ouverte sur séjour donnant sur une belle terrasse exposée sud ; une buanderie, 2 chambres, salle d'eau et toilettes séparés.
Appartement climatisé dans toutes les pièces.

Référence: 84494879
DPE
A
B
C
D
E
F
G
GES
A
B
C
D
E
F
G

Prêt immobilier

Vous souhaitez connaître votre capacité d’emprunt et trouver le meilleur crédit immobilier ?
Réaliser une simulation gratuite

Appartement à SAINT-RAPHAEL
Appartement à SAINT-RAPHAEL
Appartement à SAINT-RAPHAEL
Appartement à SAINT-RAPHAEL
Appartement à SAINT-RAPHAEL
Appartement à SAINT-RAPHAEL
Appartement à SAINT-RAPHAEL
Appartement à SAINT-RAPHAEL
Ce site est protégé par reCAPTCHA la Politique de confidentialité et les Conditions d’utilisation de Google s’appliquent.
Obtenir un prêt immobilier au meilleur taux ?

En poursuivant votre navigation sans modifier vos paramètres, vous acceptez l'utilisation de cookies susceptibles de réaliser des statistiques de visite. Cliquez ici pour plus d'informations