Grand t2 avec jardin dans résidence neuve

— Lyon-5e 69005 —
319 000 €
50 m²
2 pièces
balcon/terrasse

En plein cœur de la vie de quartier du Point du Jour, à Lyon 5ème, sur la célèbre Place Bénédict Teissier, Carrière & Associés Immobilier est ravi de vous proposer en exclusivité ce splendide appartement situé au rez-de-jardin d’une résidence neuve de standing, intimiste, composée seulement de 10 logements éco-responsables.
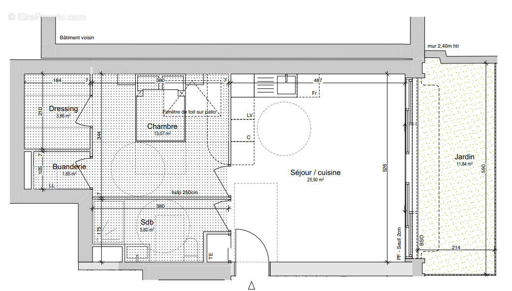
Ce bien d’exception d’une surface habitable de 50 m2 se compose d’une chambre de 13,07 m2 avec dressing (3,66 m2), buanderie. Pour votre confort, une salle de bain avec meuble vasque, grand bac à douche extra-plat, WC, carrelage au sol et faïence sur les murs. Vous serez séduit par sa pièce de vie, un séjour/cuisine de 25,90 m2, baignée de lumière naturelle où la vie se prolonge à l’extérieur par un jardin privatif de 11,84 m2. Son immense baie vitrée toute hauteur vous plonge naturellement dans le feuillage et la sérénité du jardin partagé de la co-propriété.
La prouesse technique de cet appartement est d’être construit avec des matériaux nobles géo-bio-sourcés tel que le bois et la terre-crue garantissant un confort thermique et hygrométrique optimal, mais aussi esthétique. Les plafonds sont en béton brut, les murs intérieurs sont partiellement érigés en briques de terre crue, la promesse d’une architecture sobre & minimaliste.
A la pointe de l’innovation technique et thermique, cette résidence se veut vertueuse tant dans son mode constructif que sa conception basée sur l’éco-partage. Des panneaux solaires en toiture permettent l’autoconsommation en électricité des parties communes. Vous pourrez profiter du jardin collectif de 700 m2 avec potager partagé, nichoirs, composteur et toute sa biodiversité. Au sous-sol, des places de stationnements, des vélos électriques et voitures électriques en autopartage sont à votre disposition.
Prestations haut de gamme :
-          Chauffage (PAC) plancher chauffant / rafraichissant
-          Carrelage 60*60 / parquet
-          Baies vitrées coulissants
-          Persiennes bois
-          Grand bac à douche extra-plat
-          Local vélo
-          Vélos et voiture électriques en autopartage
-          Jardin partagé : potager, composteur …
-          Résidence sécurisée : visiophone, Vigik
-          Ascenseur
-          Parking en sous-sol
-          Panneaux solaires en toiture (autoconsommation en électricité des parties communes)
-          Label RE 2020
 
Tout est à proximité : transports en commun (Bus C21, prochainement TEOL « Tramway Express de l’Ouest Lyonnais »), commerces, écoles, collège, lycée... A 10 min en voiture du centre-ville de Lyon, et 15 min en vélo !
Offrez-vous le luxe de vivre ou d’investir dans ce lieu unique où confort, tranquillité et éco-responsabilité se conjuguent harmonieusement !
Frais de notaire réduits (2,5% environ) Bien éligible Loi Pinel et PTZ (Zone A) Faibles charges de co-propriété (10 lots) Pas de procédure en cours
Pour en savoir plus ou organiser une visite, veuillez contacter Aurélie Carrière, votre agent immobilier indépendante sur l’Ouest Lyonnais / [Coordonnées masquées] / [Coordonnées masquées]/ No Carte Professionnelle : CPI 69[Coordonnées masquées]33 179 CCI Métropole de Lyon No SIREN 811 025 436 RCS Lyon Carrière & Associés Immobilier 28 Route de Sain Bel 69260 Charbonnières-Les-Bains. Les informations sur les risques auxquels ce bien est exposé sont disponibles sur le site Géorisques. Honoraires à la charge du vendeur. Bien non soumis au DPE. Photos non contractuelles.
Voir plus

Barème des honoraires

Prêt immobilier

Vous souhaitez connaître votre capacité d’emprunt et trouver le meilleur crédit immobilier ?
Réaliser une simulation gratuite

Appartement à LYON-5E
Appartement à LYON-5E
Appartement à LYON-5E
Appartement à LYON-5E
Appartement à LYON-5E
Appartement à LYON-5E
Appartement à LYON-5E
Appartement à LYON-5E
Appartement à LYON-5E
Appartement à LYON-5E
Ce site est protégé par reCAPTCHA la Politique de confidentialité et les Conditions d’utilisation de Google s’appliquent.
Obtenir un prêt immobilier au meilleur taux ?

En poursuivant votre navigation sans modifier vos paramètres, vous acceptez l'utilisation de cookies susceptibles de réaliser des statistiques de visite. Cliquez ici pour plus d'informations