Bénéficiez des services de nos partenaires locaux soigneusement sélectionnés
pour vous accompagner dans votre parcours d'achat immobilier

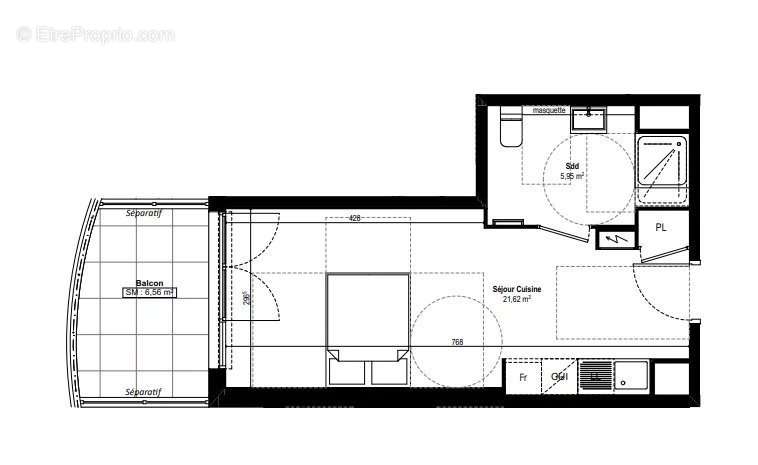
Studio 2ème étage vue dégagée

— Antibes 06600 —
215 000 €
28 m²
1 pièce
parkingbalcon/terrasseascenseurpiscineaccès handicapé

Nos partenaires locaux
Découvrez ce magnifique studio au cœur d'une pinède, situé dans une résidence neuve avec piscine.
Situé au deuxième étage, ce studio de 27 m² offre une vue dégagée et un calme absolu, idéal pour profiter de la nature environnante.
La résidence, dotée d'une piscine, permet de bénéficier d'une construction moderne et économe en énergie. L'environnement est particulièrement paisible.
Idéalement situé, ce studio offre une proximité avec les axes autoroutiers, facilitant les déplacements, et un accès rapide à Sophia Antipolis, le technopôle avec ses nombreuses entreprises et services.
Ce studio est parfait pour un premier achat, un investissement locatif ou comme pied-à-terre
Eligible au prêt à taux 0 et Pinel.
Voir plus

Prêt immobilier

Vous souhaitez connaître votre capacité d’emprunt et trouver le meilleur crédit immobilier ?
Réaliser une simulation gratuite

Appartement à ANTIBES
Appartement à ANTIBES
Appartement à ANTIBES
Appartement à ANTIBES
Ce site est protégé par reCAPTCHA la Politique de confidentialité et les Conditions d’utilisation de Google s’appliquent.
Obtenir un prêt immobilier au meilleur taux ?

En poursuivant votre navigation sans modifier vos paramètres, vous acceptez l'utilisation de cookies susceptibles de réaliser des statistiques de visite. Cliquez ici pour plus d'informations