Bénéficiez des services de nos partenaires locaux soigneusement sélectionnés
pour vous accompagner dans votre parcours d'achat immobilier

Terrain 360m² à la couyere

— La Couyere 35320 —
38 313 €
360 m²

Nos partenaires locaux

Terrain à bâtir, libre de constructeur, viabilisé, au sein d'un petit lotissement conçu pour seulement 9 lots d'habitations individuelles sous forme de quartier en extension de bourg. Architecture dans le respect de l'environnement, avec un cadre paysager préservé et réservant un ensoleillement maximal pour chaque parcelle
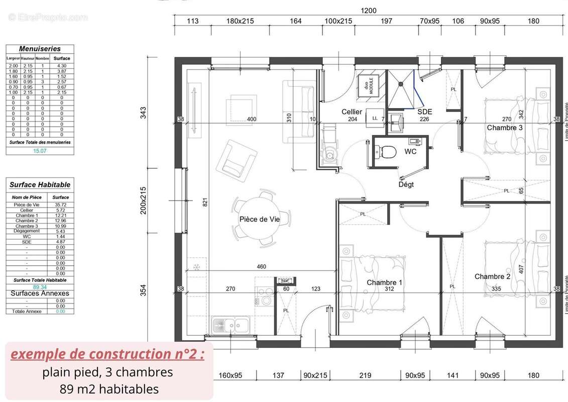
Mise en relation possible avec un maître d'oeuvre : LOT N°9 avec exemples de réalisation Maison 3 chambres environ 89 m2 habitables ou Maison 2 chambres environ 75m2 et un garage de 15 m2

compris dans le prix : Étude thermique TTC : environ 1000€ - Prix plans et permis : 1200 € TTC (Construction Réglementation thermique RT 2020 avec pré-étude par cabinet indépendant sur plans et test d'étanchéité à l'air fait en fin de chantier par un second cabinet d'étude, le dernier cabinet valide la conformité), frais maitre d'oeuvre, frais d'agence immobilière (forfait à charge acquéreur 2500€)

non compris dans le prix : frais de notaires estimés à 4300€ , assurance dommages-ouvrage, frais d'adaptation éventuelle du terrain, peinture intérieure, placards, sols dans chambres, dressing, bureau, pallier et mezzanine, vasques et lave mains, meubles de cuisine et électroménager.

Construction 145 500€ + Terrain 38 313€ = 183 813€
Eligible PTZ 2025

La Couyère : école, médiathèque, espace numérique, terrain multisports et de jeux, centre d'astronomie, restaurant…, à 9km de la gare de Janzé, 15km de Bain de Bretagne, 25 minutes de Rennes (métro Poterie) et de Chateaubriant.

Votre contact de proximité : Viviane Lamour [Coordonnées masquées]

Non soumis au DPE - Prix du bien : 38 313€€ - Prix du bien hors honoraires : 35 813€ - Honoraires TTC : forfait 2 500€ à la charge de l'acquéreur

« Les informations sur les risques auxquels ce bien est exposé sont disponibles sur le site Géorisques : www. georisques. gouv. fr ».
Voir plus

Référence: 202301241-LAMOURIMMO
Honoraires d'agence de 6.98% à la charge de l'acquéreur
Barème des honoraires

Prêt immobilier

Vous souhaitez connaître votre capacité d’emprunt et trouver le meilleur crédit immobilier ?
Réaliser une simulation gratuite

Terrain à LA COUYERE
Terrain à LA COUYERE
Terrain à LA COUYERE
Terrain à LA COUYERE
Terrain à LA COUYERE
Terrain à LA COUYERE
Terrain à LA COUYERE
Ce site est protégé par reCAPTCHA la Politique de confidentialité et les Conditions d’utilisation de Google s’appliquent.
Obtenir un prêt immobilier au meilleur taux ?

En poursuivant votre navigation sans modifier vos paramètres, vous acceptez l'utilisation de cookies susceptibles de réaliser des statistiques de visite. Cliquez ici pour plus d'informations