Bénéficiez des services de nos partenaires locaux soigneusement sélectionnés
pour vous accompagner dans votre parcours d'achat immobilier

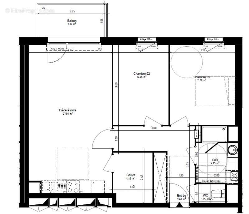
Hem centre - appartement 3 pièces (2 chambres) 69 m2

— Hem 59510 —
335 000 €
69 m²
3 pièces
parkingbalcon/terrasse

Nos partenaires locaux
Fabrice PAYNE vous propose cet appartement situé dans l'hyper centre de Hem, à proximité de toutes les commodités à pied.
Bénéficiant de tout le confort moderne lié à la nouvelle norme RE2020, il se situe au 3e et dernier étage d'un petit immeuble, avec balcon et exposition sud.
La pièce de vie est de 27,5 m2, les chambres de 12 et 10 m2, la salle de bains 4.75 m2. Un cellier vient compléter le tout ainsi que 2 parkings couverts. Le chauffage est un chauffage gaz individuel.
Double vitrage, volets roulants, entrée sécurisée, local vélos, isolation etc...
Une très belle opportunité dans un petit immeuble de 35 appartements.
Les informations sur les risques auxquels ce bien est exposé sont disponibles sur le site Géorisques : www. georisques. gouv. fr.

Contactez Fabrice PAYNE Entrepreneur Individuel, Agent commercial OptimHome (RSAC N°507 529 212 Greffe de LILLE) [Coordonnées masquées] (réf. 210937 )
Voir plus

Référence: 830039235332
Bien en copropriété.
Honoraires à la charge du vendeur.

Prêt immobilier

Vous souhaitez connaître votre capacité d’emprunt et trouver le meilleur crédit immobilier ?
Réaliser une simulation gratuite

Appartement à HEM
Appartement à HEM
Ce site est protégé par reCAPTCHA la Politique de confidentialité et les Conditions d’utilisation de Google s’appliquent.
Obtenir un prêt immobilier au meilleur taux ?

En poursuivant votre navigation sans modifier vos paramètres, vous acceptez l'utilisation de cookies susceptibles de réaliser des statistiques de visite. Cliquez ici pour plus d'informations