Bénéficiez des services de nos partenaires locaux soigneusement sélectionnés
pour vous accompagner dans votre parcours d'achat immobilier

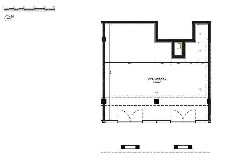
Local commercial neuf 86m2 à huningue

— Huningue 68330 —
230 000 €
86 m²

Nos partenaires locaux
Nouveauté Le Nouvel Immobilier à Huningue.
Vous êtes à la recherche d'un local commercial spacieux et moderne pour développer votre activité?
Nous vous proposons un local neuf a proximité immédiate de la Passerelle des 3 pays, idéalement situé à Huningue, dans l'Allée des Marroniers.
Points forts du bien:
- surface de 86 m2 offrant de multiples possibilités d'aménagement- localisation stratégique dans un quartier dynamique et en pleine expansion
- conception moderne et conforme aux normes d'accessibilité PMR
Localisation idéale:
- proximité immédiate avec la frontière suisse et les villes de Bâle et Weil amRhein, offrant une attractivité internationale
- accès facile aux principaux axes routiers et aux transports en commun: Ligne Tram 8 et autoroute A5, facilitant l'arrivée de vos clients et collaborateurs
- environnement urbain en plein développement, avec de nombreux commerces, services et infrastructures à proximité
- situé au cœur de la région des Trois Frontières, bénéficiant d'un bassin de clientèle varié et cosmopolite
Ce local est parfait pour une activité commerciale nécessitant de l'espace.Que vous souhaitiez ouvrir une boutique, un cabinet ou un bureau, ce bien saura répondre à vos attentes.
Pour plus d'informations ou pour organiser une visite, n'hésitez pas à nous contacter.
Honoraires charge vendeur. Mentions légales : SIREN : 890580376, Numéro RCS : 890 580 376 R.C.S. Mulhouse MAD Immobilier au 32 Rue de la Justice, 68100 Mulhouse.
CPI68[Coordonnées masquées]00010 Délivrée par la CCI Sud Alsace Mulhouse. Garant financier : GALIAN Assurances au 89 rue La Boétie 75008 Paris
Voir plus

Bien en copropriété. Nombre de lots : 172.
Barème des honoraires

Prêt immobilier

Vous souhaitez connaître votre capacité d’emprunt et trouver le meilleur crédit immobilier ?
Réaliser une simulation gratuite

Commerce à HUNINGUE
Commerce à HUNINGUE
Commerce à HUNINGUE
Commerce à HUNINGUE
Ce site est protégé par reCAPTCHA la Politique de confidentialité et les Conditions d’utilisation de Google s’appliquent.
Obtenir un prêt immobilier au meilleur taux ?

En poursuivant votre navigation sans modifier vos paramètres, vous acceptez l'utilisation de cookies susceptibles de réaliser des statistiques de visite. Cliquez ici pour plus d'informations