Bénéficiez des services de nos partenaires locaux soigneusement sélectionnés
pour vous accompagner dans votre parcours d'achat immobilier

Maison env. 105,41 m2 - 660 m2 de terrain

— Cremieu 38460 —
345 000 €
105 m² / 660 m²
4 pièces
parkingjardin

Nos partenaires locaux
CREMIEU INTRAMUROS
EN EXCLUSIVITE, votre agence SUBLIMO vous propose de devenir les heureux propriétaires de cette charmante villa, exceptionnellement rare et prisée sur la citée médiévale. Ne passez pas à côté, soyez réactif !
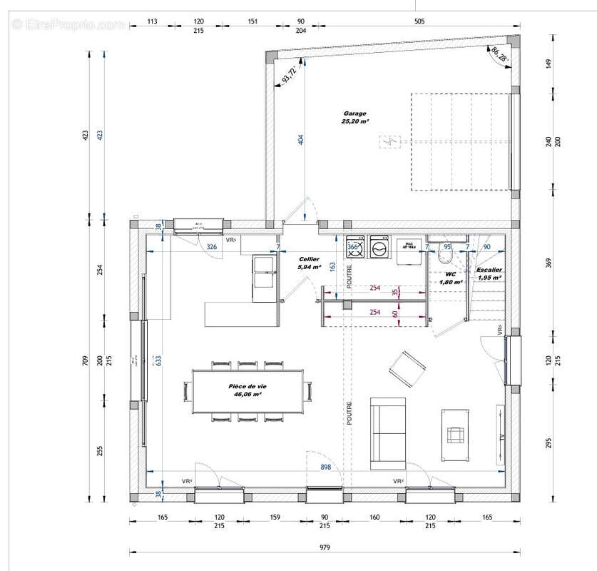
Environ 105 m2 habitables sont prévus sur 2 niveaux, répartis au rez de chaussée d'un spacieux volume de pièce à vivre de plus de 46m2 intégrant une cuisine américaine,espace rangement mural, un grand cellier et un wc.
A l'étage, 3 chambres dont une suite parentale avec salle d'eau, une salle de bains et un wc, dégagement avec placard mural.
Vous disposerez d'un garage de 25m2, et d'une aire de stationnement dans la cour, vous profiterez également d'une parcelle de 660 m2, verdoyante et cloturée sur 3 côtés.
Prestations: Volets roulants électriques, double vitrage, porte de garage sectionnelle motorisée, carrelage 60x60 dans la pièce de vie, enduit finition gratté, climatisation, sanitaires baignoire, douche et meubles vasques inclus,
Pour toute information complémentaire, contactez-nous au [Coordonnées masquées].
Voir plus

Référence: 1829A
Honoraires à la charge du vendeur.
Barème des honoraires
DPE
A
B
C
D
E
F
G
GES
A
B
C
D
E
F
G

Prêt immobilier

Vous souhaitez connaître votre capacité d’emprunt et trouver le meilleur crédit immobilier ?
Réaliser une simulation gratuite

Maison à CREMIEU
Maison à CREMIEU
Maison à CREMIEU
Maison à CREMIEU
Ce site est protégé par reCAPTCHA la Politique de confidentialité et les Conditions d’utilisation de Google s’appliquent.
Obtenir un prêt immobilier au meilleur taux ?

En poursuivant votre navigation sans modifier vos paramètres, vous acceptez l'utilisation de cookies susceptibles de réaliser des statistiques de visite. Cliquez ici pour plus d'informations