Bénéficiez des services de nos partenaires locaux soigneusement sélectionnés
pour vous accompagner dans votre parcours d'achat immobilier

Voir tous les partenaires locaux

Nice 2 pieces centre ville

— Nice 06000 —
298 000 €
36 m²
2 pièces

Nos partenaires locaux
Votre cuisiniste
Un accompagnement premium par des expertes, pour un projet sur mesure en toute sérénité.
04 97 13 82 86 ou cliquez-ici
Votre partenaire financier
Caisse d’Epargne vous accompagne pas à pas dans le financement de votre projet immobilier.
cliquez-ici
Votre référent en crédit
Crédit longue durée jusqu'à 95 ans fin de prêt- crédit à 110% avec frais de notaire et frais de garantie. Contact au :
06 28 53 39 92 ou cliquez-ici
Votre courtier assurances
ASSURANCES de PRETS : Consultez nous Avant de signer vos prêts ou Après pour renégocier à tout moment Etudes Gratuites
0493914033 ou cliquez-ici
Votre architecte local
Rénovation, création sur mesure et agrandissement : à vos cotés pour les professionnels & particuliers. Contact au :
06 80 55 27 16 ou cliquez-ici
Votre déménagement/débarras
On déménage, on débarrasse, vous respirez. Intervention rapide et efficace. Une équipe efficace à votre service
06 22 28 85 10 ou cliquez-ici

Voir tous les partenaires locaux

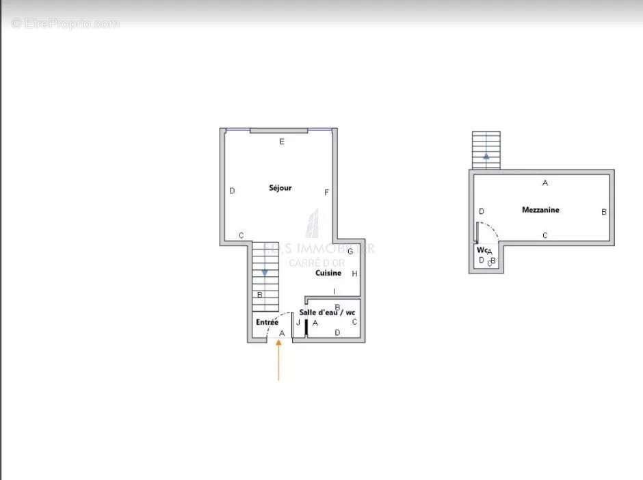
Exclusivité à proximité immédiate de la coulée verte et du boulevard Dubouchage, très bel appartement de 2 pièces en duplex entièrement refait, idéal comme pied à terre ou emplacement locatif. Appartement composé de: entrée, séjour avec un très belle hauteur sous-plafond, cuisine ouverte entièrement équipée, salle d'eau avec toilette, mezzanine avec rangements, toilette avec lave mains. les plus de l'appartement, entièrement refait, cuisine toute équipée, très belles prestations, commerces et ligne 1 du tramway à proximité.
Voir plus

Référence: 85104305
DPE
A
B
C
D
E
F
G
GES
A
B
C
D
E
F
G
Appartement à NICE
Appartement à NICE
Appartement à NICE
Appartement à NICE
Appartement à NICE
Appartement à NICE
Appartement à NICE
Appartement à NICE
Appartement à NICE
Appartement à NICE
Appartement à NICE
Appartement à NICE
Appartement à NICE
Appartement à NICE
Appartement à NICE
Géorisques

Les informations sur les risques auxquels ce bien est exposé sont disponibles sur le site Géorisques : www.georisques.gouv.fr

Ce site est protégé par hCaptcha Politique de confidentialité et Conditions d’utilisation s’appliquent.