Bénéficiez des services de nos partenaires locaux soigneusement sélectionnés
pour vous accompagner dans votre parcours d'achat immobilier

Nimes maison 3 chambres de plain pied avec jardin

— Nimes 30000 —
237 000 €
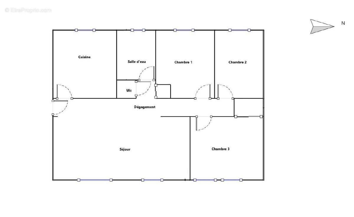
83 m² / 396 m²
4 pièces
parkingjardin

Nos partenaires locaux
Nîmes secteur Mas de Possac, maison individuelle de plain pied d'environ 83 m2 habitables sur un jardin clos et arboré de 396 m2. Elle se compose d'une pièce à vivre avec cheminée et climatisation, d'une cuisine séparée équipée, de trois chambres, d'une salle de douche à l'italienne et d'un wc indépendant. Chaudière gaz et menuiseries neuve, isolation récente .

Référence: 5018
Honoraires à la charge du vendeur.
Barème des honoraires
DPE
A
B
C
D
E
F
G
GES
A
B
C
D
E
F
G

Prêt immobilier

Vous souhaitez connaître votre capacité d’emprunt et trouver le meilleur crédit immobilier ?
Réaliser une simulation gratuite

Maison à NIMES
Maison à NIMES
Maison à NIMES
Maison à NIMES
Maison à NIMES
Maison à NIMES
Maison à NIMES
Maison à NIMES
Maison à NIMES
Ce site est protégé par reCAPTCHA la Politique de confidentialité et les Conditions d’utilisation de Google s’appliquent.
Obtenir un prêt immobilier au meilleur taux ?

En poursuivant votre navigation sans modifier vos paramètres, vous acceptez l'utilisation de cookies susceptibles de réaliser des statistiques de visite. Cliquez ici pour plus d'informations