Bénéficiez des services de nos partenaires locaux soigneusement sélectionnés
pour vous accompagner dans votre parcours d'achat immobilier

Maison neuve 4 pièces Plain-pied lumineux

— Saujon 17600 —
276 000 €
105 m² / 514 m²
4 pièces
parkingjardin

Nos partenaires locaux
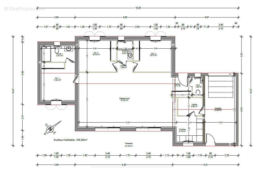
En exclusivité, LE CHAY (SAUJON) découvrez cette maison de 4 pièces nichée dans un quartier calme. D’une surface de 105,80 m2 habitables, elle offre un cadre de vie agréable sur un terrain de 514 m2, s’ouvrant directement sur le jardin, et par son chauffage au sol par pompe à chaleur, alliant confort et modernité.
Lumineuse et fonctionnelle, la maison se distingue par son séjour de 47 m2 et son ouverture naturelle sur le jardin. La cuisine prolonge cet espace central et s’accompagne d’un cellier fonctionnel. L’espace nuit comprend trois chambres dont une suite parentale, une salle d’eau indépendante et un WC.
Un garage attenant complète l’ensemble.
Chauffage au sol par pompe à chaleur.
Honoraires agence à la charge du vendeur. En savoir plus sur nos honoraires : https://www.par-agence.fr/nos-honoraires/ Risques : www.georisques.gouv.fr
Voir plus

Référence: 2815-6
Barème des honoraires
Maison à SAUJON
Maison à SAUJON
Maison à SAUJON
Maison à SAUJON
Maison à SAUJON
Géorisques

Les informations sur les risques auxquels ce bien est exposé sont disponibles sur le site Géorisques : www.georisques.gouv.fr

Ce site est protégé par hCaptcha Politique de confidentialité et Conditions d’utilisation s’appliquent.

En poursuivant votre navigation sans modifier vos paramètres, vous acceptez l'utilisation de cookies susceptibles de réaliser des statistiques de visite. Cliquez ici pour plus d'informations