Plouezec- maison en pierres 7 pièces sur 120m²

— Plouezec 22470 —
397 125 €
120 m² / 4 940 m²
7 pièces
parkingbalcon/terrassejardin

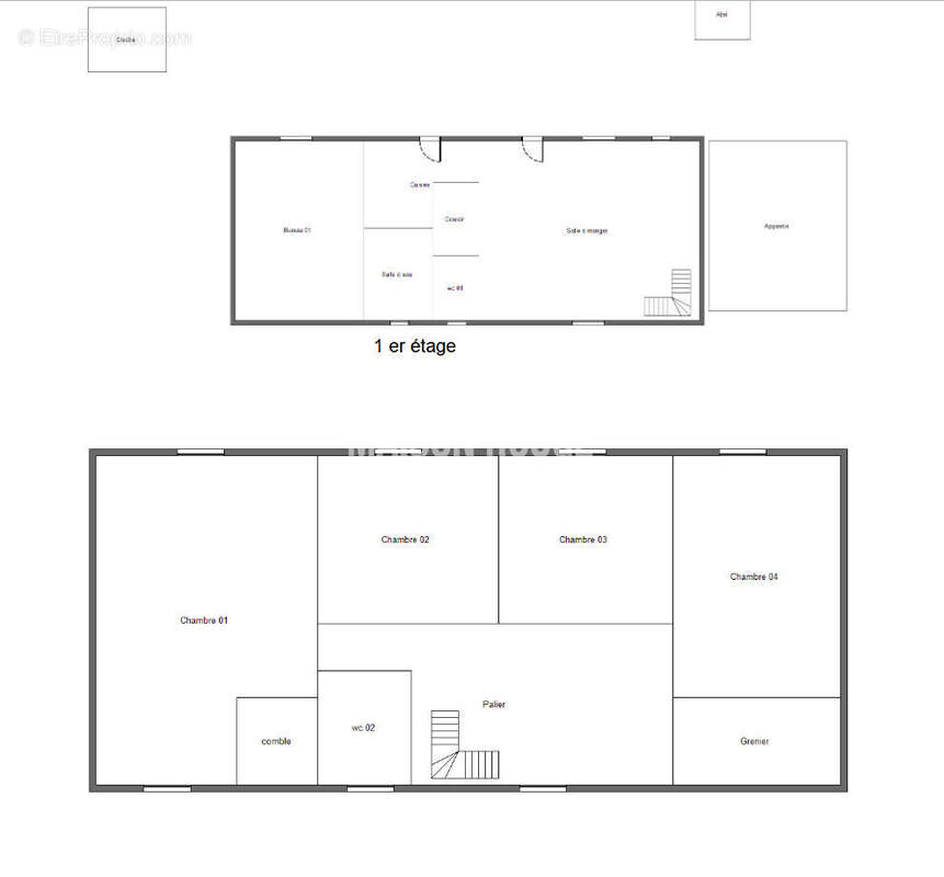
Je vous propose en Exclusivité, d'acquérir cette magnifique longère en pierres, situé à 10 minutes de Paimpol, 5 minutes du bourg et 7 minutes de Bréhec plage ! Cette propriété de caractère nichée au coeur d'un vaste terrain verdoyant de 4900m² environ clos, vous offre une agréable pièce de vie avec une cheminée en pierres, une cuisine indépendante aménagée, douche à l'italienne, cinq belles chambres dont une en rez-de-chaussée. Maison au calme, idéal pour les amateurs de nature et tranquillité possède un cellier attenant, une annexe en pierre sous ardoises, une terrasse et un chalet en bois. Offrez-vous un cadre de vie exceptionnel, alliant charme, authentique et confort ! Prix FAI : 397 125 euros dont 5.90 % honoraires TTC à la charge de l'acquéreur. Rachel PEREZ (EI) Agent Commercial - Numéro RSAC : 930 727 979 - SAINT BRIEUC.
Voir plus

Référence: 31832
Honoraires d'agence de 5.9% à la charge de l'acquéreur
Barème des honoraires
DPE
A
B
C
D
E
F
G
GES
A
B
C
D
E
F
G

Prêt immobilier

Vous souhaitez connaître votre capacité d’emprunt et trouver le meilleur crédit immobilier ?
Réaliser une simulation gratuite

Maison à PLOUEZEC
Maison à PLOUEZEC
Maison à PLOUEZEC
Maison à PLOUEZEC
Maison à PLOUEZEC
Maison à PLOUEZEC
Maison à PLOUEZEC
Maison à PLOUEZEC
Maison à PLOUEZEC
Maison à PLOUEZEC
Maison à PLOUEZEC
Maison à PLOUEZEC
Maison à PLOUEZEC
Maison à PLOUEZEC
Maison à PLOUEZEC
Maison à PLOUEZEC
Maison à PLOUEZEC
Maison à PLOUEZEC
Maison à PLOUEZEC
Maison à PLOUEZEC
Maison à PLOUEZEC
Maison à PLOUEZEC
Maison à PLOUEZEC
Ce site est protégé par reCAPTCHA la Politique de confidentialité et les Conditions d’utilisation de Google s’appliquent.
Obtenir un prêt immobilier au meilleur taux ?

En poursuivant votre navigation sans modifier vos paramètres, vous acceptez l'utilisation de cookies susceptibles de réaliser des statistiques de visite. Cliquez ici pour plus d'informations