Bénéficiez des services de nos partenaires locaux soigneusement sélectionnés
pour vous accompagner dans votre parcours d'achat immobilier

Opportunité à marseille 10ème : propriété à rénover avec potentiel 250 m2 env. surface totale au sol

— Marseille-10e 13010 —
519 900 €
250 m² / 614 m²
9 pièces
parkingbalcon/terrassejardin

Nos partenaires locaux
Située au cœur du quartier de Pont de Vivaux, à Marseille 10ème, cet ensemble immobilier offre un potentiel exceptionnel. Édifié sur un terrain clos et arboré de 614 m2 exposé Est-Ouest. L’ensemble se compose de deux appartements et d’une maisonnette nichée au fond de la parcelle, dans un environnement calme et à l’abri des regards, le tout agrémenté d’un jardin clos et arboré.
Proche des commerces et facilement accessible en transport en commun ou en voiture. Il se situe à proximité de l’échangeur Florian, la L2 et l’extension Urbain Sud, ainsi que l’A7.
De plus, le stationnement est disponible à la fois devant et à l’intérieur de la propriété.

Détails des Biens :
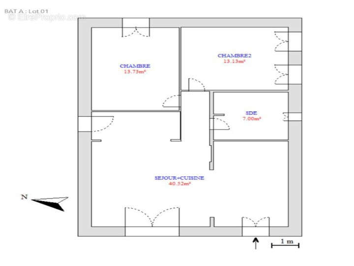
1-Appartement T3 au Rez-de-Chaussée, traversant (92 m2 au sol, 74,5 m2 carrez) Etat correct :
Cuisine ouverte sur le séjour,
Deux belles chambres,
Grande salle d’eau,
Terrasse,
Double vitrage, chauffage au gaz et climatisation réversible dans le séjour.

2-Appartement T3 au 1er Étage, traversant (95 m2 au sol, 77 m2 carrez) - À Rénover Intégralement :
Salon-salle à manger avec cheminée,
Deux belles chambres,
Grand balcon,
Vaste grenier aménageable (charpente en très bon état, réfection partielle de la toiture à prévoir),
Un projet de rénovation complet vous permettra de créer un espace unique et personnalisé !

3-Maisonnette T2 au Rez-de-Chaussée (62 m2 au sol, 32,5 m2 carrez) - Travaux intérieurs à achever :
Séjour avec coin cuisine,
Une chambre,
Vaste sous-sol,
Double vitrage,
Chauffage électrique.

Informations supplémentaires :
Taxe foncière : 1 350 euros.
Cette opportunité est idéale pour les investisseurs, les marchands de biens ou les amateurs de projets de rénovation. Possibilité de stationnement devant et à l’intérieur de la propriété.

Curieux s’abstenir…
Contact : Anissa Djellouli [Coordonnées masquées]
Cette annonce vous est proposée par DJELLOULI Anissa - EI - NoRSAC: 850906694, Enregistré à Chambre de commerce et de l'industrie de MARSEILLE - Annonce rédigée et publiée par un Agent Mandataire -
Voir plus

Référence: 76027
Barème des honoraires
DPE
A
B
C
D
E
F
G
GES
A
B
C
D
E
F
G

Prêt immobilier

Vous souhaitez connaître votre capacité d’emprunt et trouver le meilleur crédit immobilier ?
Réaliser une simulation gratuite

Maison à MARSEILLE-10E
Maison à MARSEILLE-10E
Maison à MARSEILLE-10E
Maison à MARSEILLE-10E
Maison à MARSEILLE-10E
Maison à MARSEILLE-10E
Maison à MARSEILLE-10E
Maison à MARSEILLE-10E
Maison à MARSEILLE-10E
Maison à MARSEILLE-10E
Maison à MARSEILLE-10E
Maison à MARSEILLE-10E
Maison à MARSEILLE-10E
Maison à MARSEILLE-10E
Maison à MARSEILLE-10E
Maison à MARSEILLE-10E
Maison à MARSEILLE-10E
Maison à MARSEILLE-10E
Maison à MARSEILLE-10E
Maison à MARSEILLE-10E
Maison à MARSEILLE-10E
Maison à MARSEILLE-10E
Maison à MARSEILLE-10E
Maison à MARSEILLE-10E
Maison à MARSEILLE-10E
Ce site est protégé par reCAPTCHA la Politique de confidentialité et les Conditions d’utilisation de Google s’appliquent.
Obtenir un prêt immobilier au meilleur taux ?

En poursuivant votre navigation sans modifier vos paramètres, vous acceptez l'utilisation de cookies susceptibles de réaliser des statistiques de visite. Cliquez ici pour plus d'informations