Bénéficiez des services de nos partenaires locaux soigneusement sélectionnés
pour vous accompagner dans votre parcours d'achat immobilier

Vente : terrain 73200 grignon

— Grignon 73200 —
65 000 €
301 m²
parkingbalcon/terrassejardin

Nos partenaires locaux
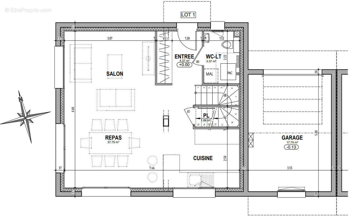
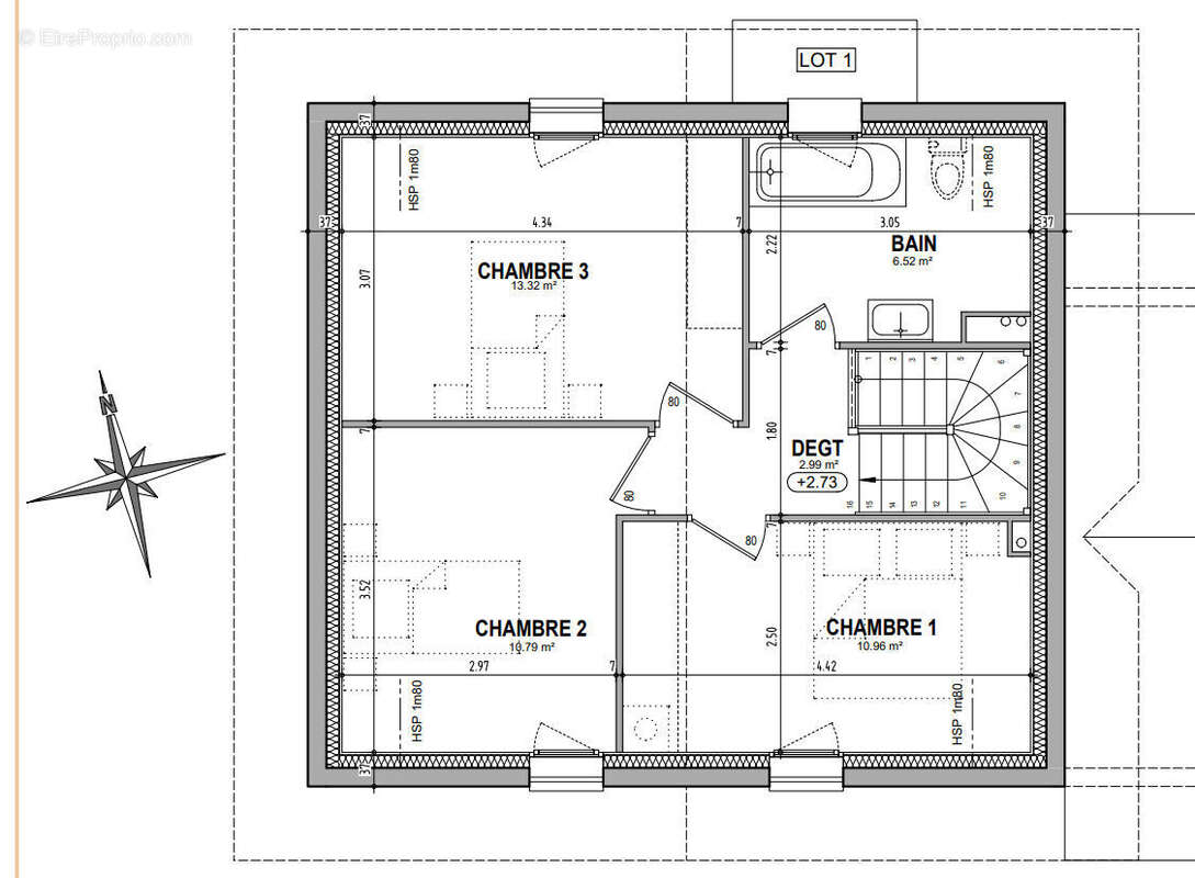
VENTE DE TERRAIN DE 301 M² SUR LA COMMUNE DE 73200 GRIGNON Un projet de construction de maison individuelle vous est proposé, il sera à déterminer de façon définitive avec le constructeur. Ce terrain est idéalement situé, à proximité des écoles et des commerces et dans un secteur calme de la commune. Pour plus d'informations merci de contacter l'agence LAFORET IMMOBILIER ALBERTVILLE Plans non contractuel, car modifiables avec le constructeur

Référence: 437
Honoraires à la charge du vendeur.
Barème des honoraires

Prêt immobilier

Vous souhaitez connaître votre capacité d’emprunt et trouver le meilleur crédit immobilier ?
Réaliser une simulation gratuite

Terrain à GRIGNON
Terrain à GRIGNON
Terrain à GRIGNON
Terrain à GRIGNON
Terrain à GRIGNON
Terrain à GRIGNON
Ce site est protégé par reCAPTCHA la Politique de confidentialité et les Conditions d’utilisation de Google s’appliquent.
Obtenir un prêt immobilier au meilleur taux ?

En poursuivant votre navigation sans modifier vos paramètres, vous acceptez l'utilisation de cookies susceptibles de réaliser des statistiques de visite. Cliquez ici pour plus d'informations