Bénéficiez des services de nos partenaires locaux soigneusement sélectionnés
pour vous accompagner dans votre parcours d'achat immobilier

En exclusivité - pornichet - maison de 190 m2 - 5 chambres - vue mer

— Pornichet 44380 —
1 260 000 €
190 m² / 870 m²
7 pièces
parkingbalcon/terrassejardin

Nos partenaires locaux
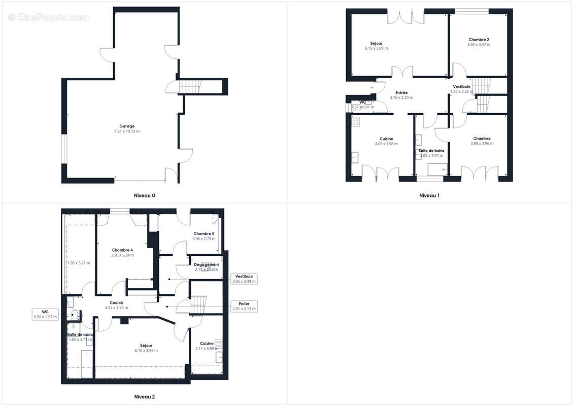
En exclusivité - Au calme avec vue magnifique sur la mer, maison avec de beaux volumes comprenant au rez-de-chaussée: entrée, salon-séjour, cuisine aménagée et équipée sur balcon exposé sud, deux chambres, une salle d'eau, un wc et un dégagement. À l'étage: un salon, une cuisine aménagée et équipée, trois chambres, une salle de bains, un wc et un dégagement. Nombreux placards. Au sous-sol: un grand garage de 70 m2, un bureau, une cave, une buanderie et une chaufferie.
Sur la parcelle: un atelier et une grande dépendance.
Chauffage gaz et électrique - huisseries en double vitrage avec volets roulants électriques.
Proche des commerces, plage à pieds,
Réf : 2083SL - Honoraires inclus à la charge de l'acquéreur: 5%.
Contactez-moi: Sébastien LOLLIER au [Coordonnées masquées]. Inscrit au RSAC de Nantes sous le numéro 817784549 pour le compte d'Immo Nantes.
Voir plus

Honoraires d'agence de 5% à la charge de l'acquéreur
DPE
A
B
C
D
E
F
G
GES
A
B
C
D
E
F
G

Prêt immobilier

Vous souhaitez connaître votre capacité d’emprunt et trouver le meilleur crédit immobilier ?
Réaliser une simulation gratuite

Maison à PORNICHET
Maison à PORNICHET
Maison à PORNICHET
Maison à PORNICHET
Maison à PORNICHET
Maison à PORNICHET
Maison à PORNICHET
Maison à PORNICHET
Maison à PORNICHET
Maison à PORNICHET
Maison à PORNICHET
Maison à PORNICHET
Maison à PORNICHET
Maison à PORNICHET
Maison à PORNICHET
Maison à PORNICHET
Maison à PORNICHET
Maison à PORNICHET
Maison à PORNICHET
Maison à PORNICHET
Ce site est protégé par reCAPTCHA la Politique de confidentialité et les Conditions d’utilisation de Google s’appliquent.
Obtenir un prêt immobilier au meilleur taux ?

En poursuivant votre navigation sans modifier vos paramètres, vous acceptez l'utilisation de cookies susceptibles de réaliser des statistiques de visite. Cliquez ici pour plus d'informations