Bénéficiez des services de nos partenaires locaux soigneusement sélectionnés
pour vous accompagner dans votre parcours d'achat immobilier

Au pied de la défense magnifiques bureaux convertibles en appartements - vue seine

— Courbevoie 92400 —
1 119 000 €
258 m²
7 pièces

Nos partenaires locaux
A 5min à pieds du Métro L1, des RER A/E, et à 500m de l'A14 et la N13.
A deux pas des écoles, des commerces, du Tram T2 et de la ligne de train L.
Dans un immeuble de standing très bien entretenu construit par l'architecte Jean DUBUISSON.
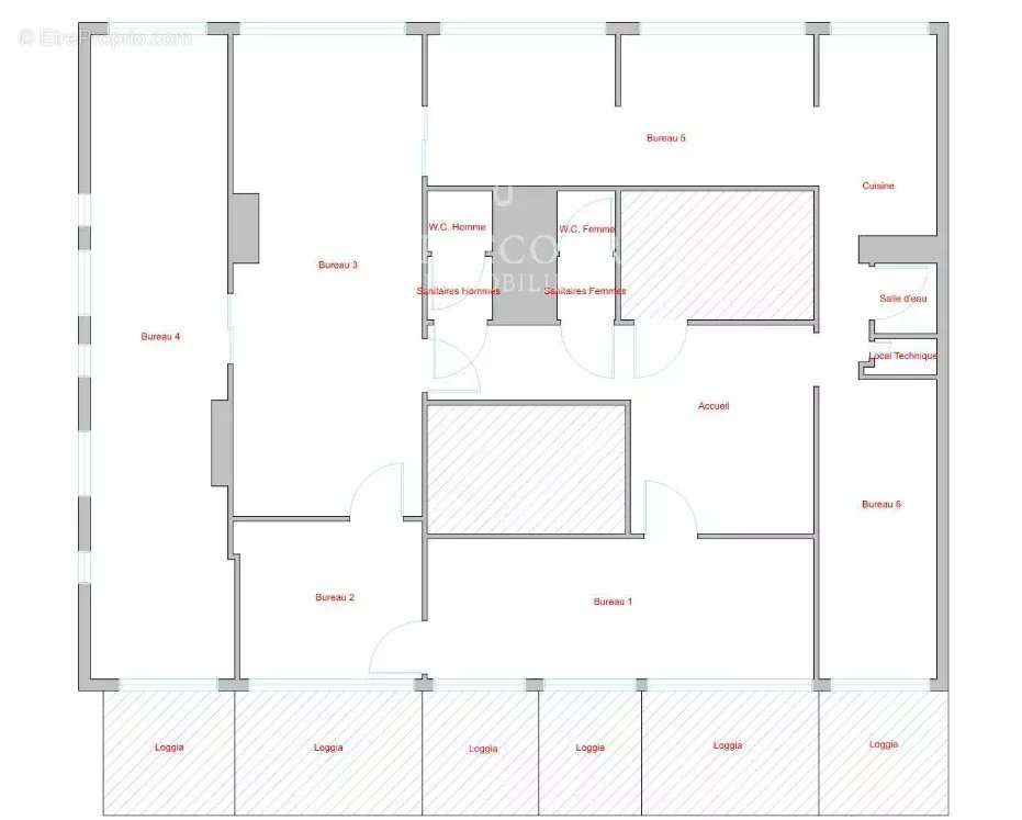
Nous vous proposons ce plateau composé de 6 bureaux, d'un accueil, d'une cuisine, d'une salle d'eau, de toilettes et d'une loggia de 31,45m².

Vous serez séduit par son état général, sa luminosité et sa vue imprenable sur la Seine.
Locaux modulables, sécurisés, dotés de la fibre et d'un cablâge RJ45.

Possibilité de reprise du crédit bail permettant une diminution du prix d'acquisition.

Possibilité de transformer le plateau en 3 ou 4 appartements.

Vendu avec 2 places de parkings en sous-sol.

A visiter sans tarder!
Voir plus

Référence: 85130890
Barème des honoraires

Prêt immobilier

Vous souhaitez connaître votre capacité d’emprunt et trouver le meilleur crédit immobilier ?
Réaliser une simulation gratuite

Commerce à COURBEVOIE
Commerce à COURBEVOIE
Commerce à COURBEVOIE
Commerce à COURBEVOIE
Commerce à COURBEVOIE
Ce site est protégé par reCAPTCHA la Politique de confidentialité et les Conditions d’utilisation de Google s’appliquent.
Obtenir un prêt immobilier au meilleur taux ?

En poursuivant votre navigation sans modifier vos paramètres, vous acceptez l'utilisation de cookies susceptibles de réaliser des statistiques de visite. Cliquez ici pour plus d'informations